How to Read and Use the Circuit Schematics
Schematic LayoutCircuit Schematics:
Each schematic represents one circuit. A circuit's wires and components are arranged to show current flow, from power at the top of the image, to ground, at the bottom.
Connectors
All in-line, pigtail, and fuse box connectors are numbered (C725, C416 etc). Component connectors are not numbered but are identified by the name of the component. If a component has more than one connector, each connector is assigned a letter (A,B,C etc). Below most connector numbers and component names are PHOTO and VIEW numbers. The PHOTO number refers to a photo that shows the connector's location on the car. The VIEW number refers to an illustration that shows the connector face, wire colors, connector cavity numbers, and other details.
Cavity Numbering System:
The connector cavity numbering sequence begins at the top left corner of the connector as seen from either of the view points. Disregard any numbers moulded into the connector housing.
Wires
Wires are identified by the abbreviated names of their colors; the second color is the color of the stripe. Wires are also identified by their location in a connector. The number "2" next to the male and female wire terminals at C416, for example, means those terminals join in cavity 2 of connector C416.
Locating Components and Connectors
Component Locations:
To see where a component or connector is located on the car, look up its photo number in the Component Location section. The photo will also tell you the color of the connector, and how many cavities it has.
Connector Identification And Wire Harness Routing:
If there is no photo number below or beside a component name or a connector, ground, or terminal number, look up that name or number in the appropriate connector identification Chart. The chart lists how many cavities it has, where it's located, and what it connects to. The related illustration shows the connector's location on the harness and the harness routing.
Shared Circuits
Other circuits may share power or ground terminals or wiring with the circuit shown. A wire that connects one circuit to another, for example, is cut short and has an arrowhead at the end of it pointing in the direction of current flow. Next to the arrowhead is the name of the circuit or component which shares that wiring. To quickly check shared wiring, check the operation of a component it serves. If that component works, you know the shared wiring is OK.
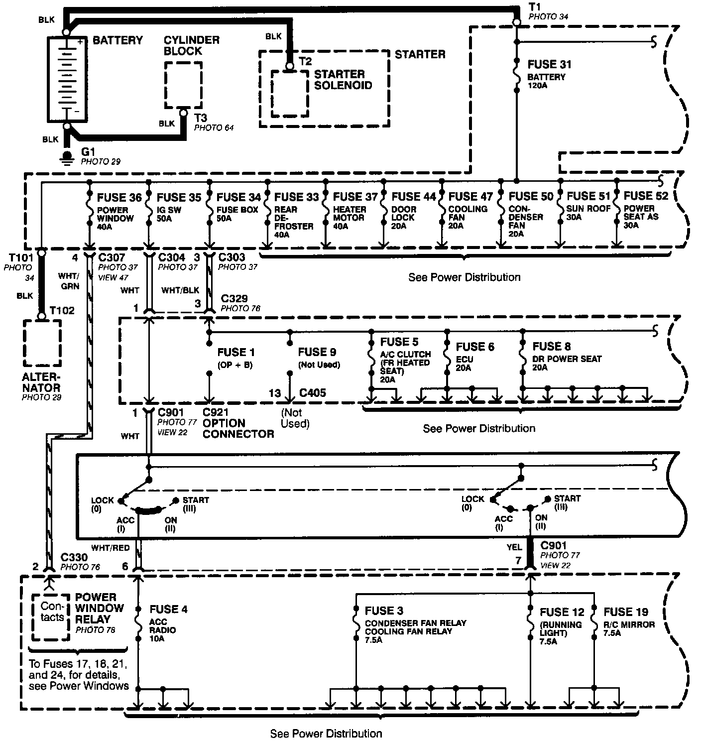
Power Distribution Schematics
Power Distribution schematics show how power is supplied from the positive battery terminal to various circuits in the car. Refer to the Power Distribution section to get a more detailed picture of how power is supplied to the circuit you're working on.
Power Distribution Schematics (From Battery To Ignition Switch, Fuses And Relays):
From Battery to Ignition Switch, Fuses and Relays
Individual circuit schematics begin with a fuse. The first half of Power Distribution, however, shows the wiring "upstream" between the battery and the fuses.
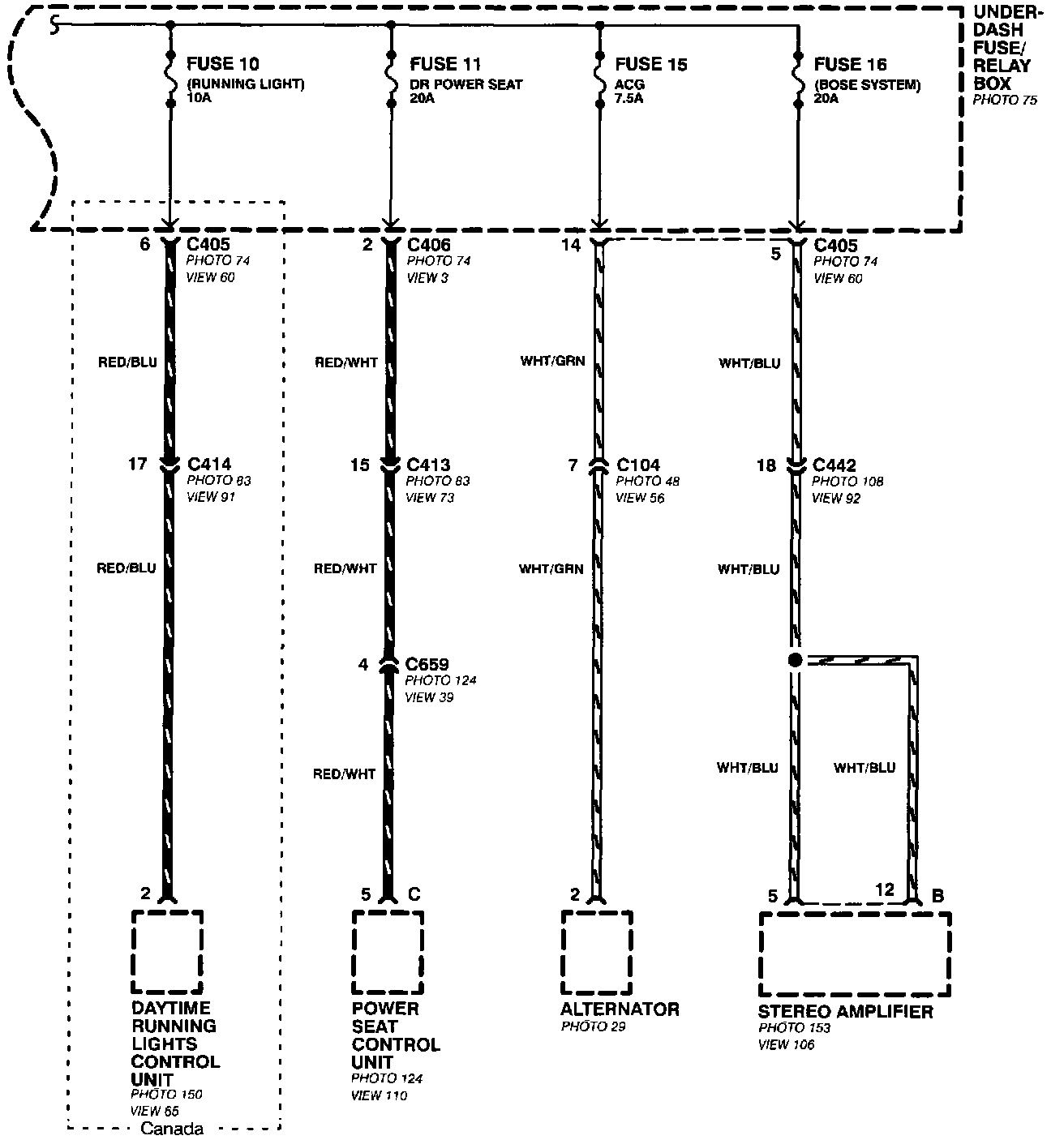
Power Distribution Schematics (From Fuses To Relays And Components):
From Fuses to Relays and Components
The second half of Power Distribution shows the wiring "From Fuses to Relays and Components." This can speed your troubleshooting by showing which circuits share fuses. If Power Distribution shows that an inoperative circuit and another circuit share a fuse, check a component in the other circuit. If it works, you know the fuse is good and power is available to the inoperative circuit.
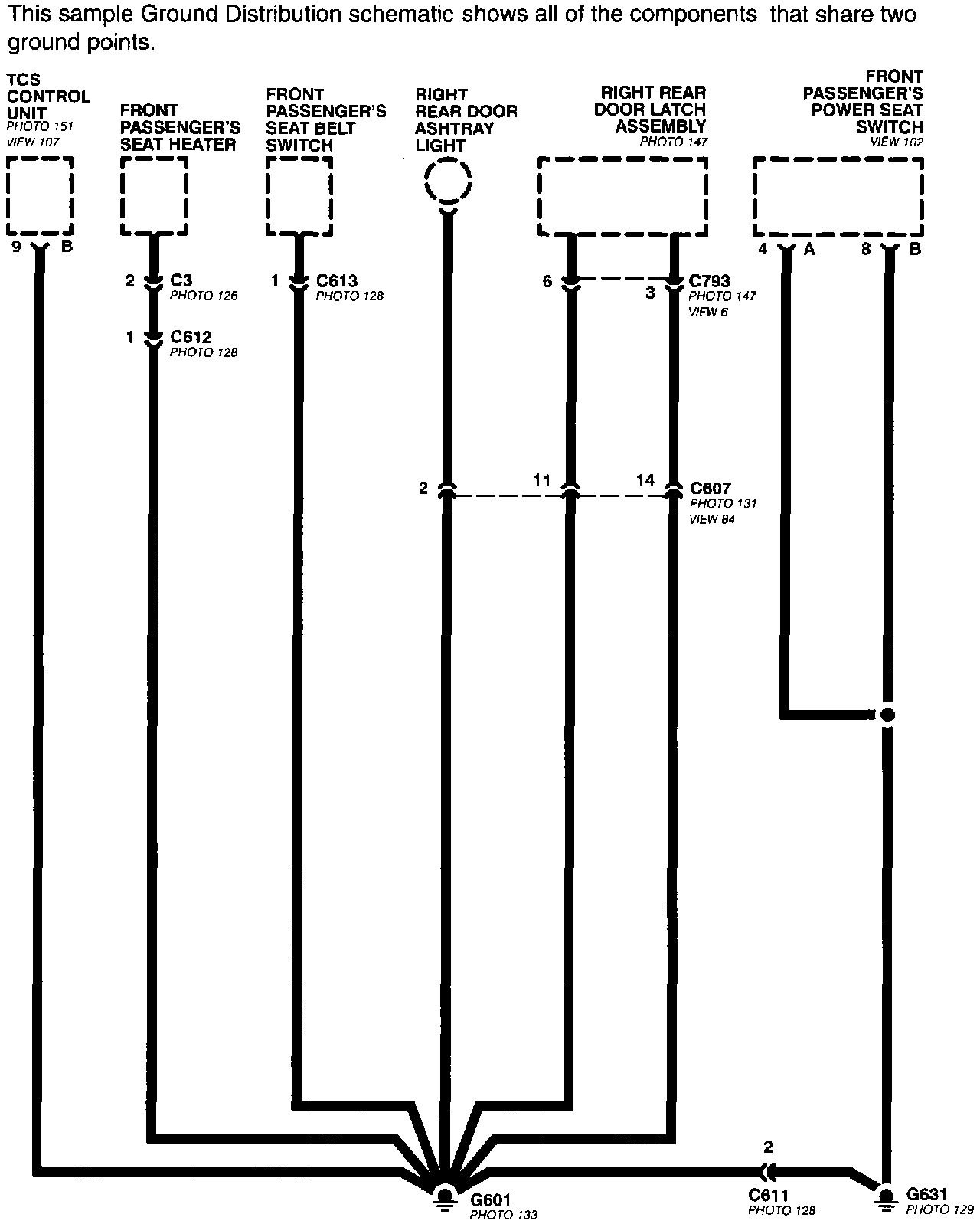
Ground Distribution Schematics
Ground Distribution Schematics:
This sample Ground Distribution schematic shows all of the components that share two ground points.