Operation CHARM: Car repair manuals for everyone.
Manuals through 2025 now available!

Our trusted friends have launched a new website named LEMON, which has newer manuals. It also contains all the CHARM manuals.

LEMON is the spiritual successor to CHARM, I recommend you try it!

Link: lemon-manuals.la or lemon-manuals.org.ua

(Some people have issue connecting. LEMON is investigating. For now, use Firefox or change your DNS server)

Or, hide this message: temporarily or permanently

Electrical Diagrams




Automatic Transmission Controls Schematics

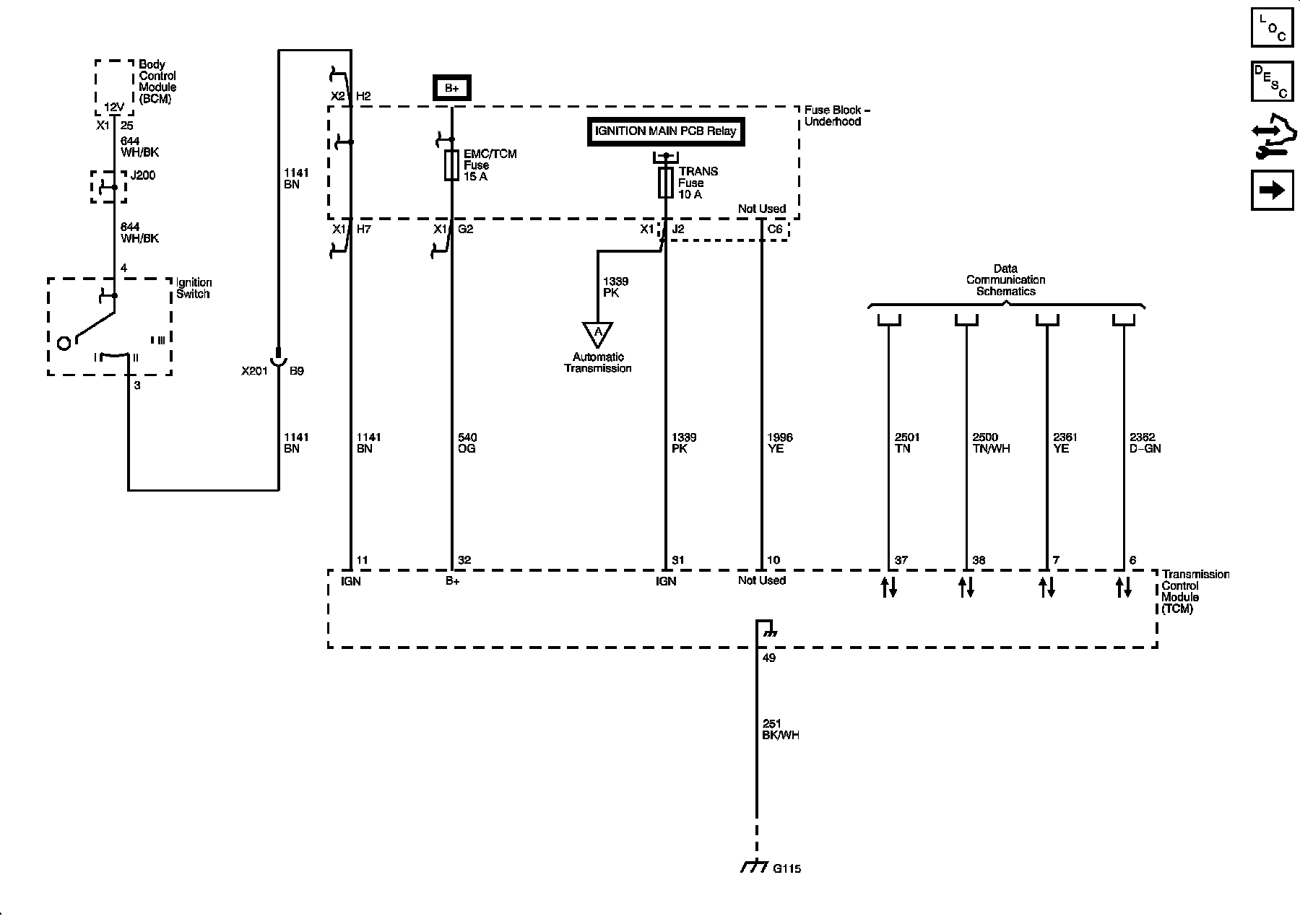
TCM Power, Ground, and Serial Data (LS4)





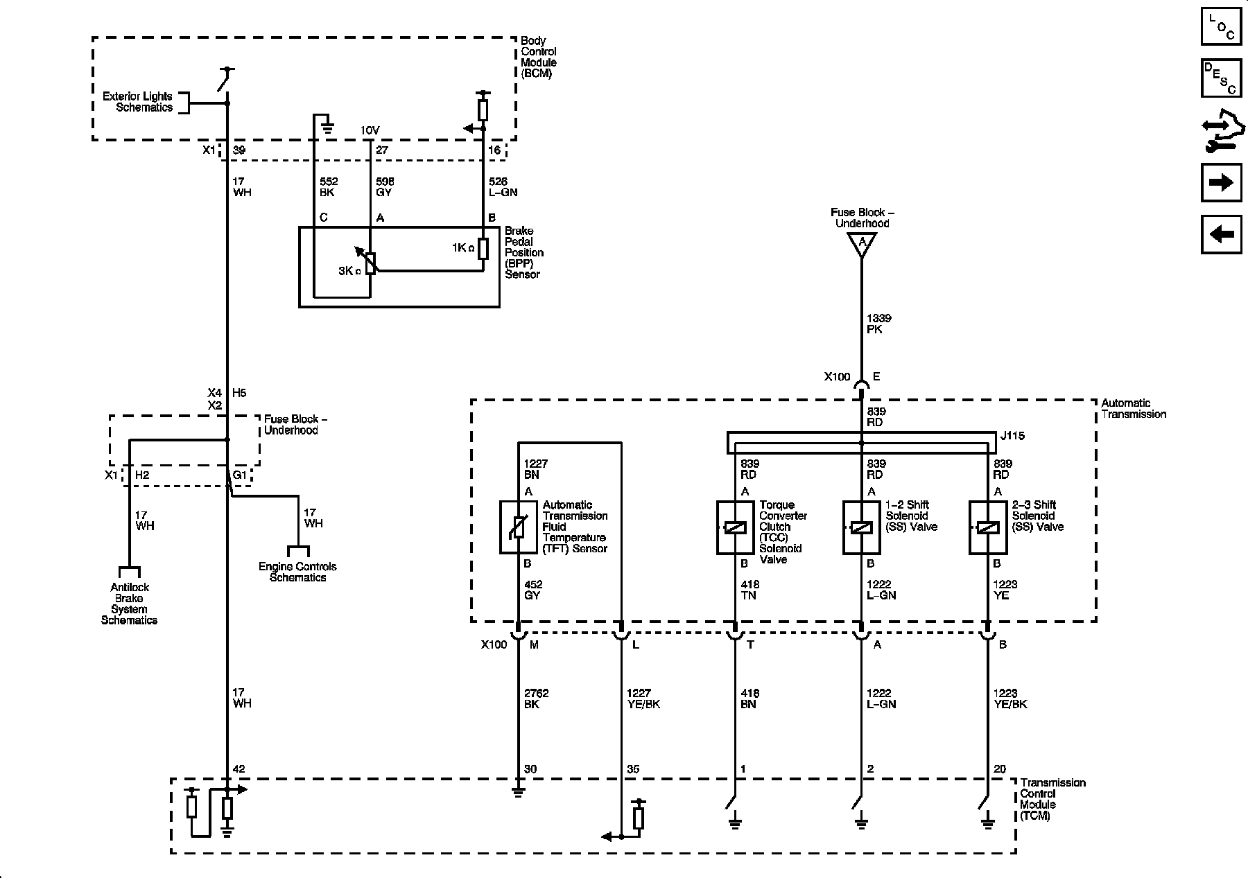
Shift and TCC Solenoid Valves, TFT Sensor, and Stop Lamp Switch (LS4)





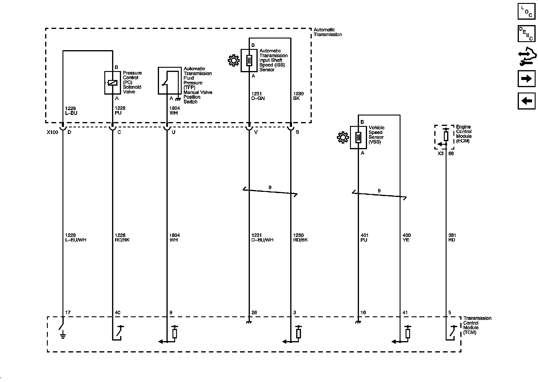
PC Solenoid Valve, Fluid Pressure Manual Valve Position Switch, ISS and VSS Sensors (LS4)





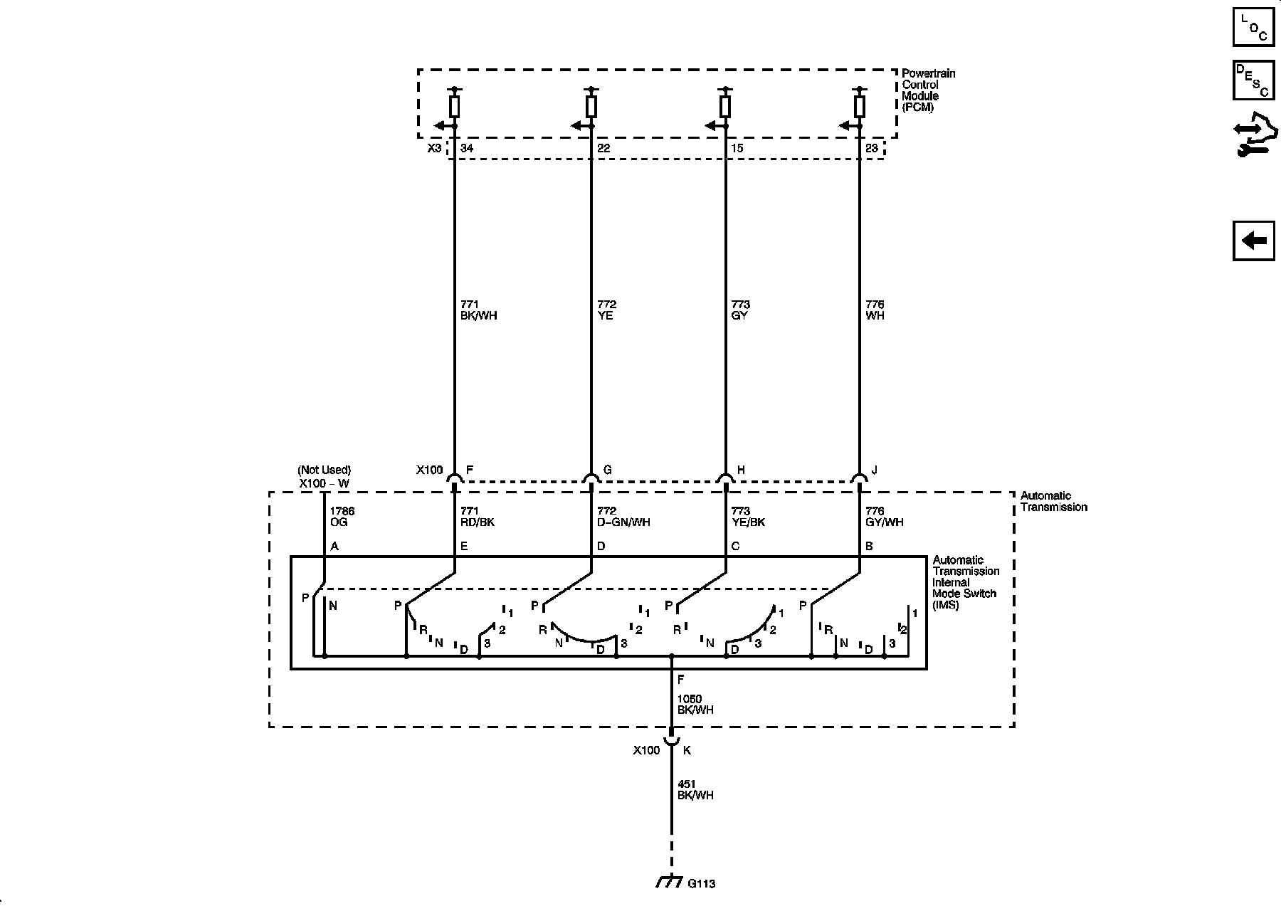
Automatic Transmission Internal Mode Switch (IMS) (LS4)





Shift and TCC Solenoid Valves, TFT Sensor, and Stop Lamp Switch (L26)





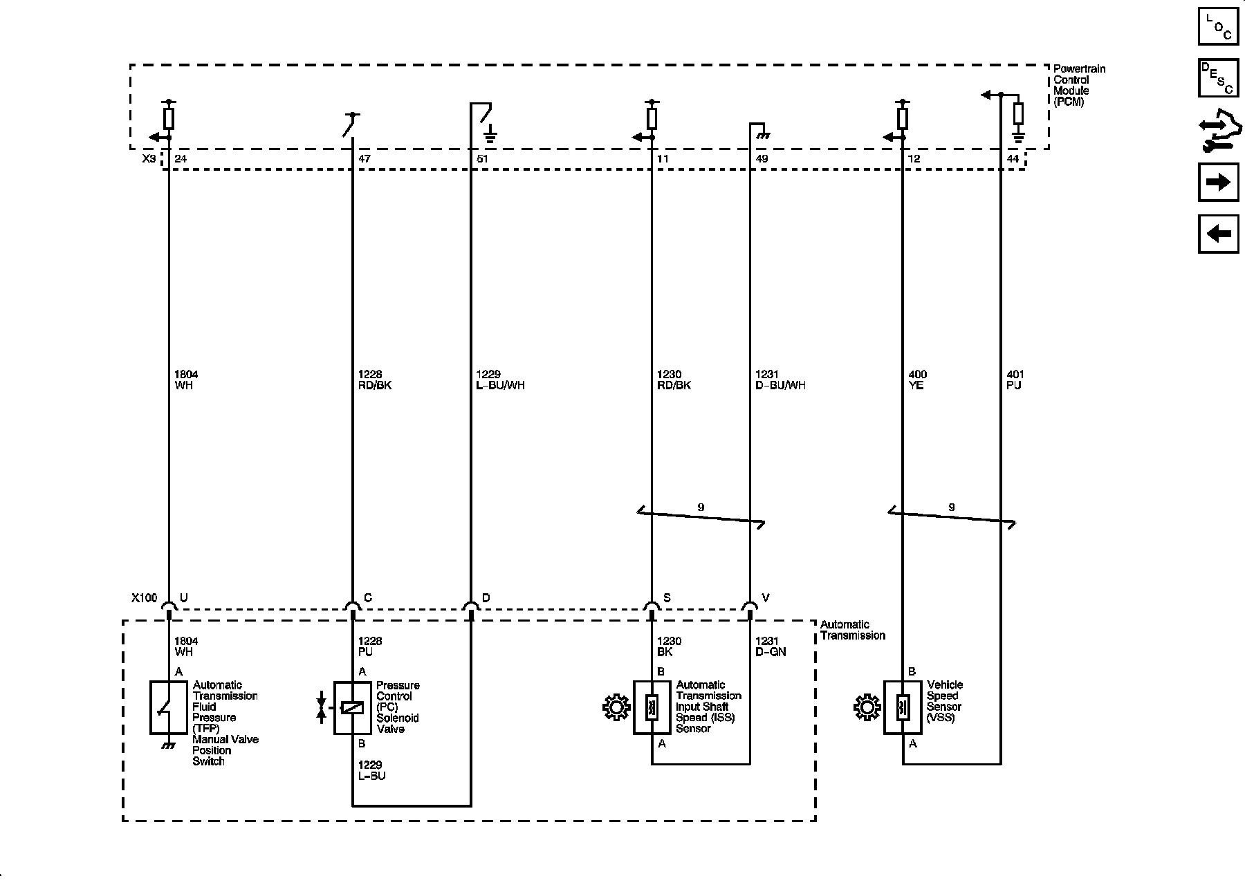
PC Solenoid Valve, Fluid Pressure Manual Valve Position Switch, ISS and VSS Sensors (L26)





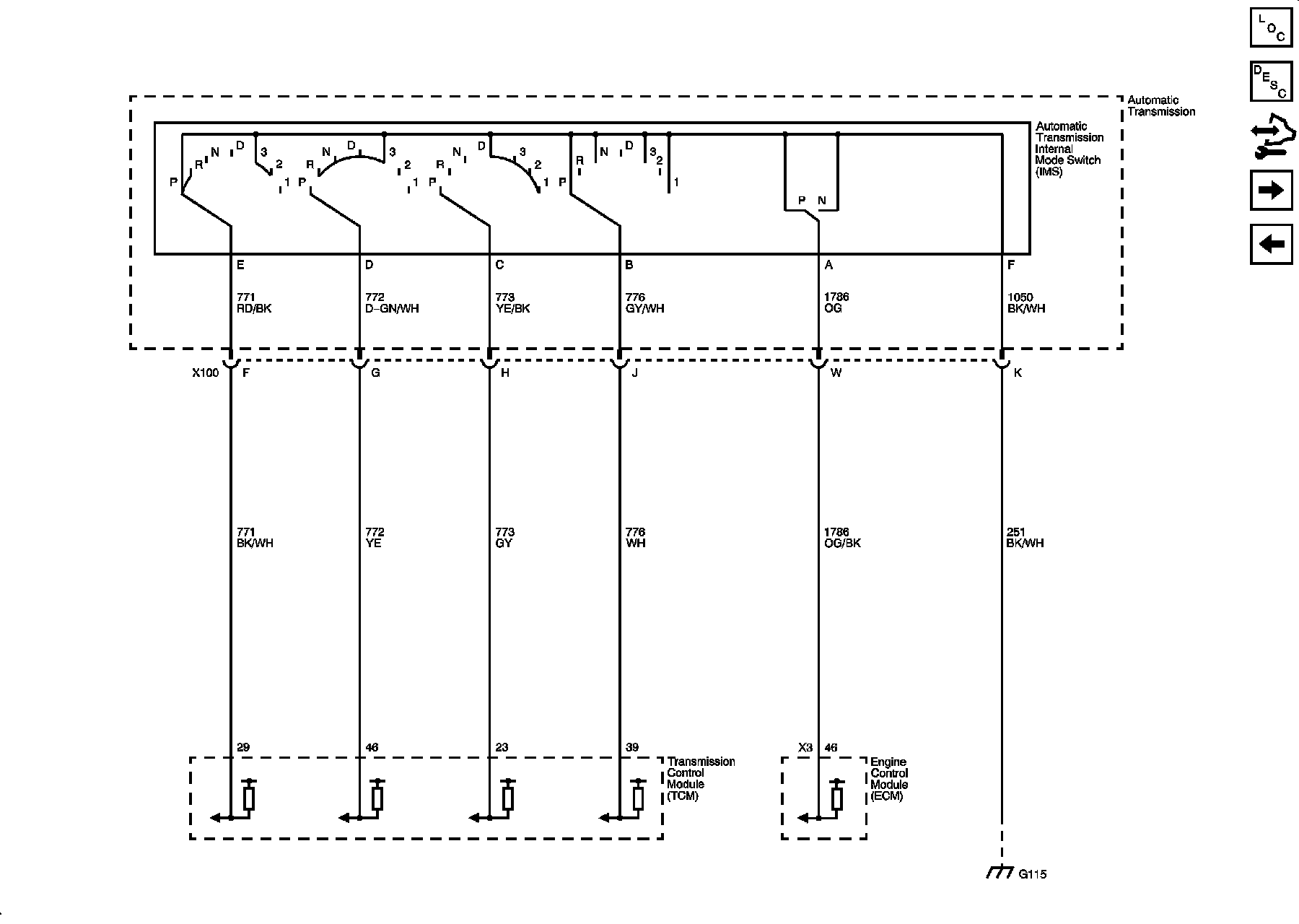
Automatic Transmission Internal Mode Switch (IMS) (L26)