Operation CHARM: Car repair manuals for everyone.
Manuals through 2025 now available!

Our trusted friends have launched a new website named LEMON, which has newer manuals. It also contains all the CHARM manuals.

LEMON is the spiritual successor to CHARM, I recommend you try it!

Link: lemon-manuals.la or lemon-manuals.org.ua

(Some people have issue connecting. LEMON is investigating. For now, use Firefox or change your DNS server)

Or, hide this message: temporarily or permanently

Electrical Diagrams





Remote Function Schematics

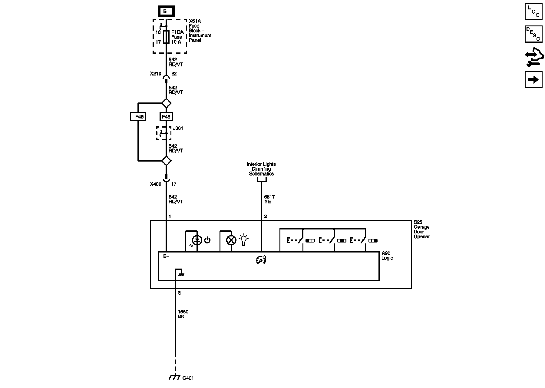
Garage Door Opener (-CZ2)





Passive Entry Power, Ground, Data Communication (ATH with BTM), and Remote Keyless Entry





Passive Entry and Passive Start Antennas (ATH with BTM)





Door Lock Switches and Unlatch Motors (ATS with BTM)(CZ2)





Keyless Entry (-CZ2)