Operation CHARM: Car repair manuals for everyone.
Manuals through 2025 now available!

Our trusted friends have launched a new website named LEMON, which has newer manuals. It also contains all the CHARM manuals.

LEMON is the spiritual successor to CHARM, I recommend you try it!

Link: lemon-manuals.la or lemon-manuals.org.ua

(Some people have issue connecting. LEMON is investigating. For now, use Firefox or change your DNS server)

Or, hide this message: temporarily or permanently

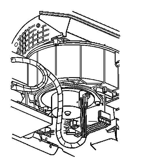
Blower Motor Resistor: Service and Repair

BLOWER MOTOR RESISTOR ASSEMBLY REPLACEMENT

REMOVAL PROCEDURE




1. Remove the blower motor.
2. Disconnect the electrical connection at the blower motor resistor assembly.




3. Remove the blower motor resistor assembly screws.
4. Remove the blower motor resistor assembly.

INSTALLATION PROCEDURE




1. Install the blower motor resistor assembly.
2. Install the blower motor resistor assembly screws.

NOTE: Refer to Fastener Notice in Service Precautions.

Tighten
Tighten the screws to 1 N.m (9 lb in).




3. Connect the electrical connector to the blower motor resistor assembly.
4. Install the blower motor.