Operation CHARM: Car repair manuals for everyone.
Manuals through 2025 now available!

Our trusted friends have launched a new website named LEMON, which has newer manuals. It also contains all the CHARM manuals.

LEMON is the spiritual successor to CHARM, I recommend you try it!

Link: lemon-manuals.la or lemon-manuals.org.ua

(Some people have issue connecting. LEMON is investigating. For now, use Firefox or change your DNS server)

Or, hide this message: temporarily or permanently

Electronic Brake Control Module: Service and Repair

Electronic Brake Control Module (EBCM) Replacement

Removal Procedure






Notice: Always connect or disconnect the wiring harness connector from the EBCM/EBTCM with the ignition switch in the OFF position. Failure to observe this precaution could result in damage to the EBCM/EBTCM.

1. Turn the ignition switch to the OFF position.
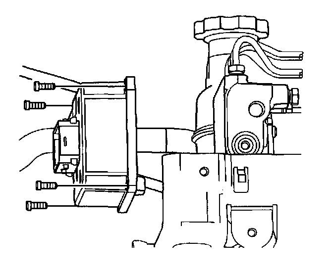
2. Clean the electronic brake control module (EBCM) to brake pressure modulator valve (BPMV) area of any accumulated dirt and foreign material.
3. Disconnect the electrical connector from the EBCM.





4. Remove the 4 EBCM-to-BPMV retaining bolts.
5. Separate the EBCM from the BPMV by carefully pulling apart.
6. Ensure the motor pin connector gets removed with the EBCM. A new motor pin connector comes with the replacement EBCM and should be replaced during service of the EBCM.

Installation Procedure





1. Clean the sealing surface of the BPMV, with denatured alcohol and a clean shop cloth.
2. Use care when aligning the EBCM to the BPMV electrical terminals. Install the EBCM to the BPMV.






Notice: Refer to Fastener Notice in Service Precautions.

3. Install the 4 EBCM-to-BPMV retaining bolts (1).
^ Tighten the bolts in a criss-cross pattern.
^ Tighten the bolts to 5 Nm (44 inch lbs.).






Important: Ensure that the electrical connector Is correctly inserted properly into the EBCM prior to swinging the assist locking lever into position. Failure to make a proper connection may cause communication problems with the module.

4. Connect the electrical connector to the EBCM.
5. If installing a new EBCM it is necessary to program the EBCM. Programming and Relearning

Important: Do NOT start the engine, but only turn the ignition switch to the ON position.

6. Perform the Diagnostic System Check - Vehicle in Vehicle DTC Information