Operation CHARM
: Car repair manuals for everyone.
Home
>>
Chevrolet
>>
2009
>>
Impala V6-3.9L
>>
Repair and Diagnosis
>>
Diagrams
>>
Electrical Diagrams
>>
Antilock Brakes / Traction Control Systems
Manuals through 2025 now available!
Our trusted friends have launched a new website named LEMON, which has newer manuals. It also contains all the CHARM manuals.
LEMON is the spiritual successor to CHARM, I recommend you try it!
Link:
lemon-manuals.la
or
lemon-manuals.org.ua
(Some people have issue connecting. LEMON is investigating. For now, use Firefox or change your DNS server)
Or, hide this message:
temporarily
or
permanently
Antilock Brakes / Traction Control Systems
Antilock Brake System Schematics
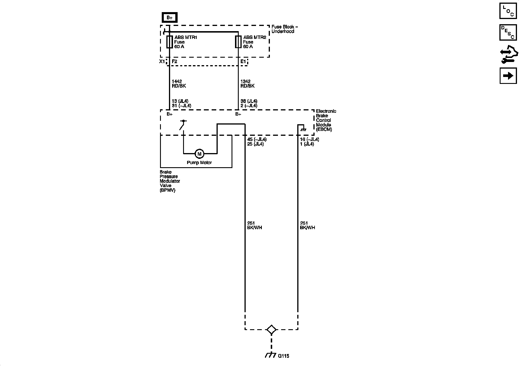
Power, Ground, and Brake Pressure Modulator Valves
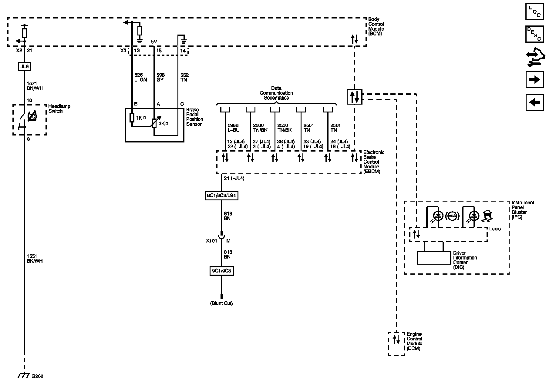
Indicators, ABS, and Traction Control
Wheel Speed Sensors
Steering Angle and Yaw and Lateral Accelometer Sensors (JL4)