Operation CHARM
: Car repair manuals for everyone.
Home
>>
Chevrolet
>>
2013
>>
Sonic L4-1.4L Turbo
>>
Repair and Diagnosis
>>
Diagrams
>>
Electrical Diagrams
>>
Powertrain Management
>>
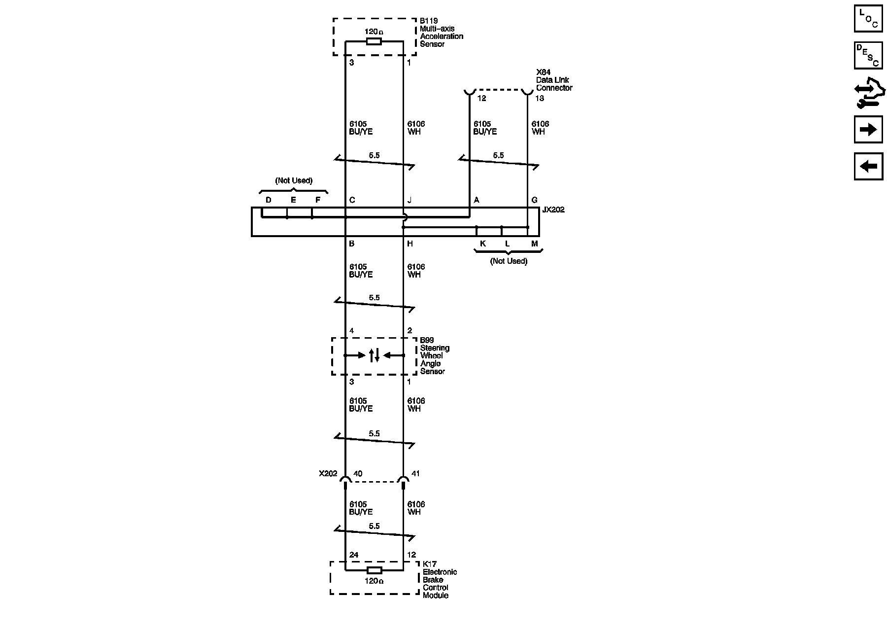
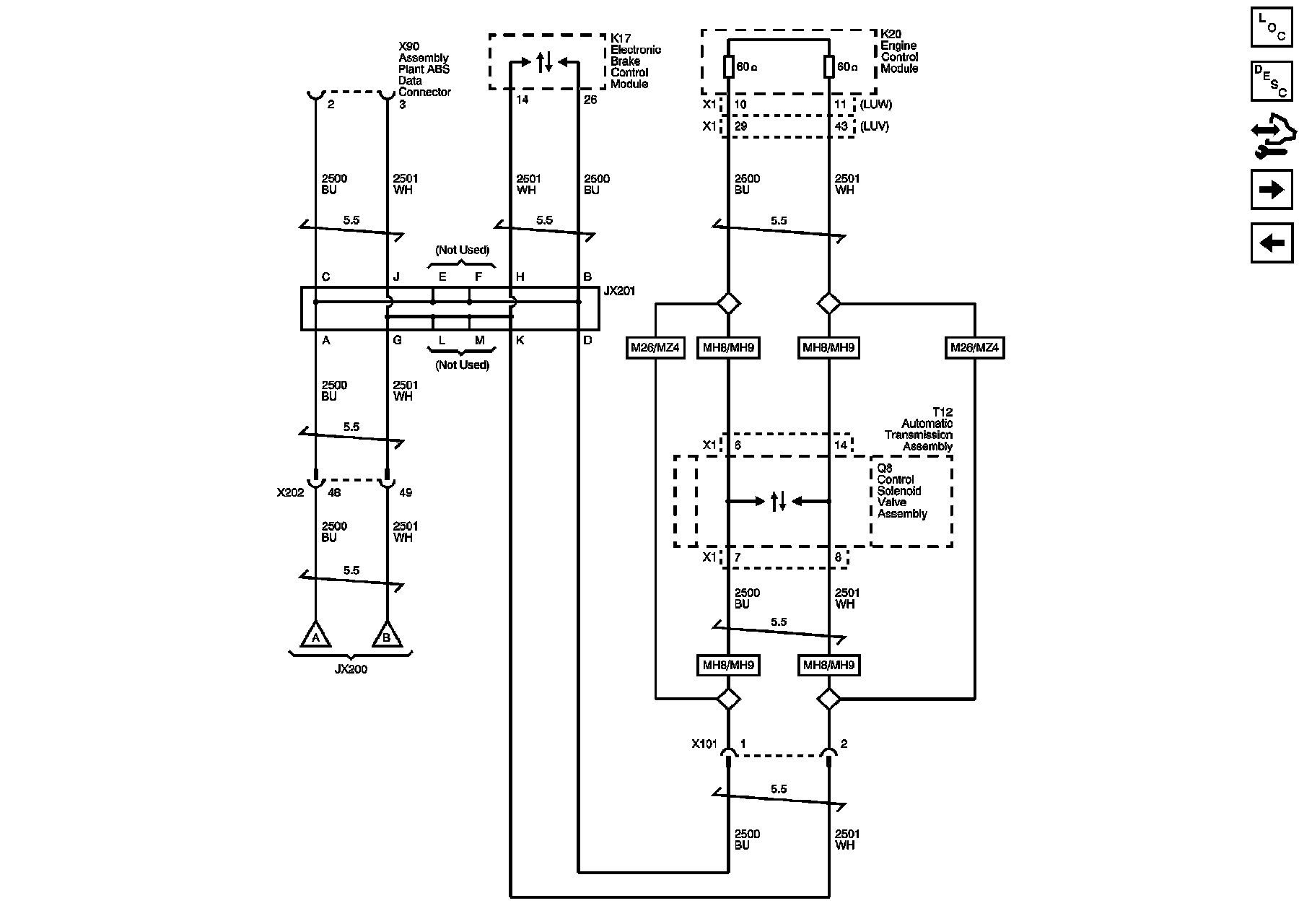
Information Bus
Manuals through 2025 now available!
Our trusted friends have launched a new website named LEMON, which has newer manuals. It also contains all the CHARM manuals.
LEMON is the spiritual successor to CHARM, I recommend you try it!
Link:
lemon-manuals.la
or
lemon-manuals.org.ua
(Some people have issue connecting. LEMON is investigating. For now, use Firefox or change your DNS server)
Or, hide this message:
temporarily
or
permanently
Information Bus
Data Communication Schematics
Power, Ground, and Low Speed GMLAN
High Speed GMLAN Bus 1 (1 of 2)
High Speed GMLAN Bus 1 (2 of 2)
High Speed GMLAN Bus 2 (FX3)
Communication Enable and Linear Interconnect Network (LIN)