Operation CHARM: Car repair manuals for everyone.
Manuals through 2025 now available!

Our trusted friends have launched a new website named LEMON, which has newer manuals. It also contains all the CHARM manuals.

LEMON is the spiritual successor to CHARM, I recommend you try it!

Link: lemon-manuals.la or lemon-manuals.org.ua

(Some people have issue connecting. LEMON is investigating. For now, use Firefox or change your DNS server)

Or, hide this message: temporarily or permanently

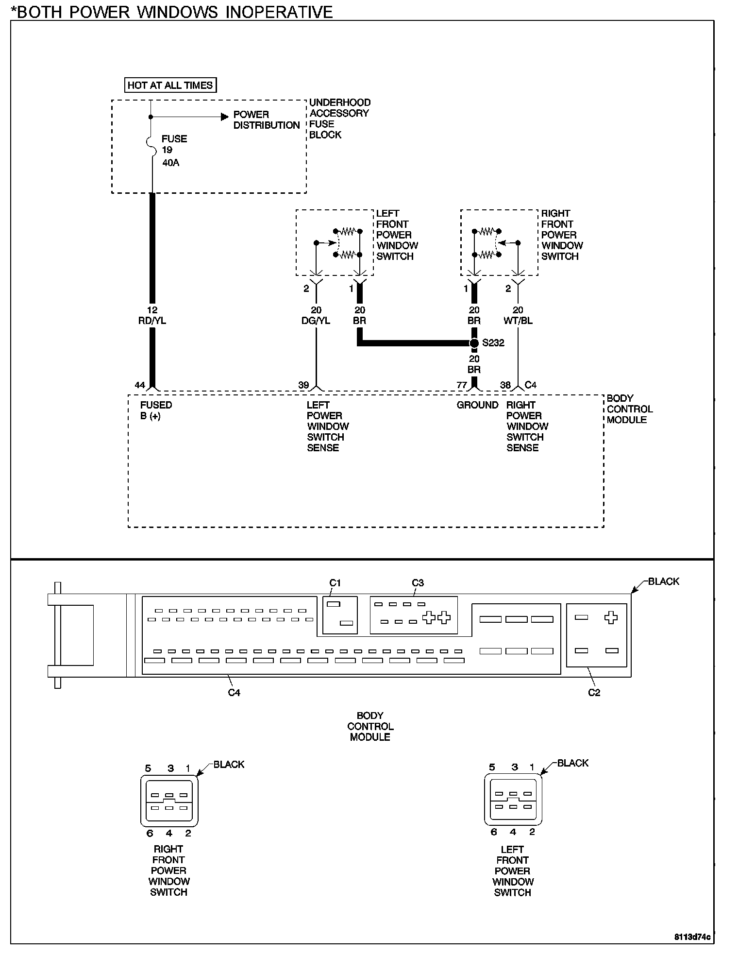
Both Front Power Window Inoperative








POSSIBLE CAUSES
- Fused B(+) circuit open
- Power window switch ground circuit open
- Body control module internal failure

Diagnostic Test




1. MEASURE POWER WINDOWS FUSED B(+) CIRCUIT VOLTAGE

NOTE: Inspect Fuse 19 located in the Underhood Accessory Fuse Block. If the fuse is open, repair the cause of the open fuse before continuing.

Turn the ignition off.
Disconnect the Body Control Module (BCM) harness connector.

NOTE: Check connectors - Clean/repair as necessary.

Turn the ignition on.
Measure the voltage at the BCM harness connector Fused B(+) circuit.

Q: Is the voltage above 10 volts?

YES: Go to 2
NO: Repair the BCM Fused B(+) circuit for an open. Perform BODY VERIFICATION TEST. Body Verification Test




2. MEASURE LEFT FRONT POWER WINDOW SWITCH GROUND CIRCUIT RESISTANCE

Turn the ignition off.
Disconnect the Left Front Power Window Switch harness connector.

NOTE: Check connectors - Clean/repair as necessary. Measure the resistance of the Left Front Power Window Switch Ground circuit from the Left Front Power Window Switch harness connector to the BCM harness connector.

Q: Is the resistance below 5.0 ohms?

YES: Go to 3
NO: Repair the Left Front Power Window Switch ground circuit for an open. Perform BODY VERIFICATION TEST. Body Verification Test




3. MEASURE RIGHT FRONT POWER WINDOW SWITCH GROUND CIRCUIT RESISTANCE

With the ignition off.
Disconnect the Right Front Power Window Switch harness connector.

NOTE: Check connectors - Clean/repair as necessary. Measure the resistance of the Right Front Power Window Switch Ground circuit from the Right Front Power Window Switch harness connector to the BCM harness connector.

Q: Is the resistance below 5.0 ohms?

YES: Replace the Body Control Module. Perform BODY VERIFICATION TEST. Body Verification Test
NO: Repair the Right Front Power Window Switch ground circuit for an open. Perform BODY VERIFICATION TEST. Body Verification Test