Operation CHARM: Car repair manuals for everyone.
Manuals through 2025 now available!

Our trusted friends have launched a new website named LEMON, which has newer manuals. It also contains all the CHARM manuals.

LEMON is the spiritual successor to CHARM, I recommend you try it!

Link: lemon-manuals.la or lemon-manuals.org.ua

(Some people have issue connecting. LEMON is investigating. For now, use Firefox or change your DNS server)

Or, hide this message: temporarily or permanently

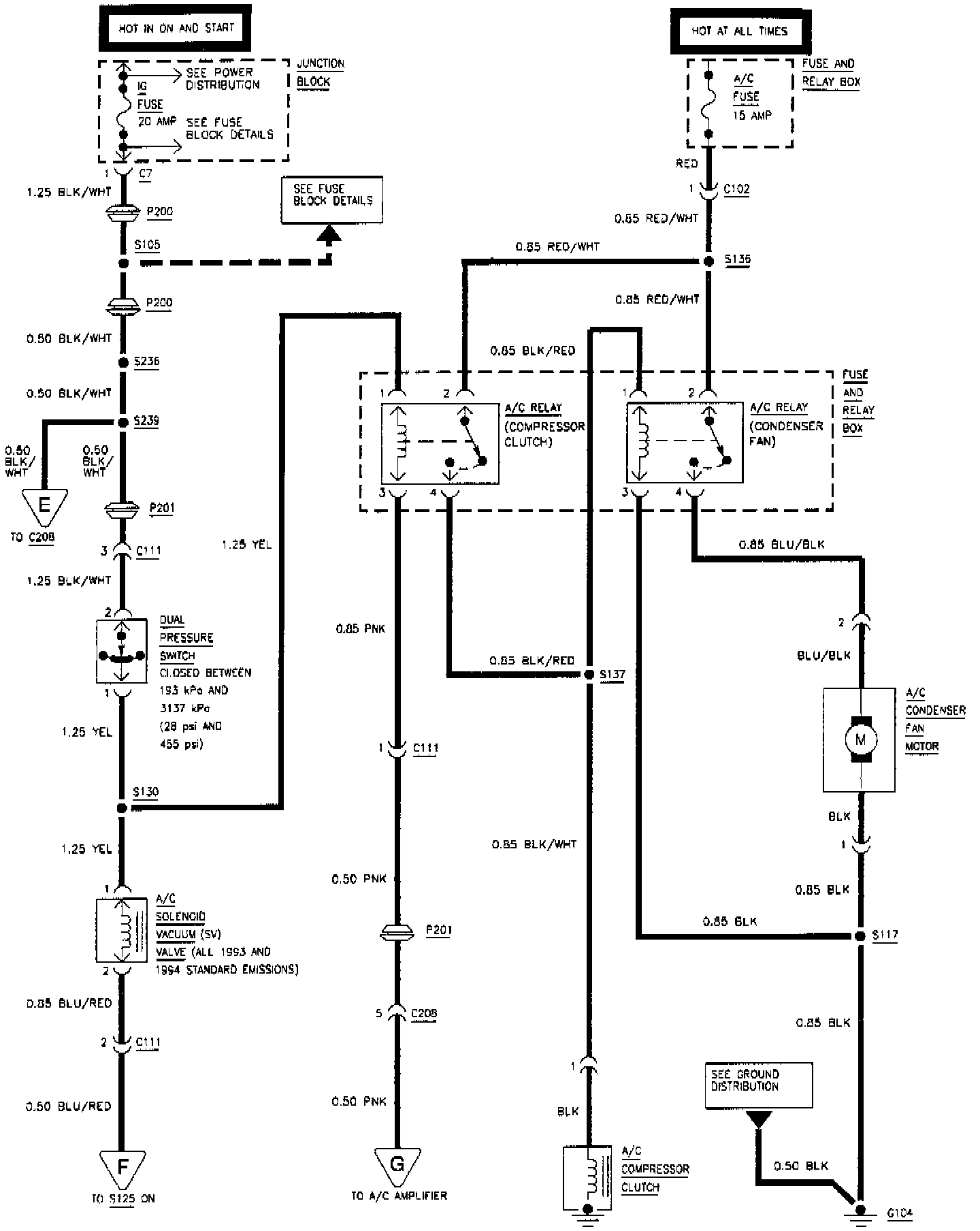
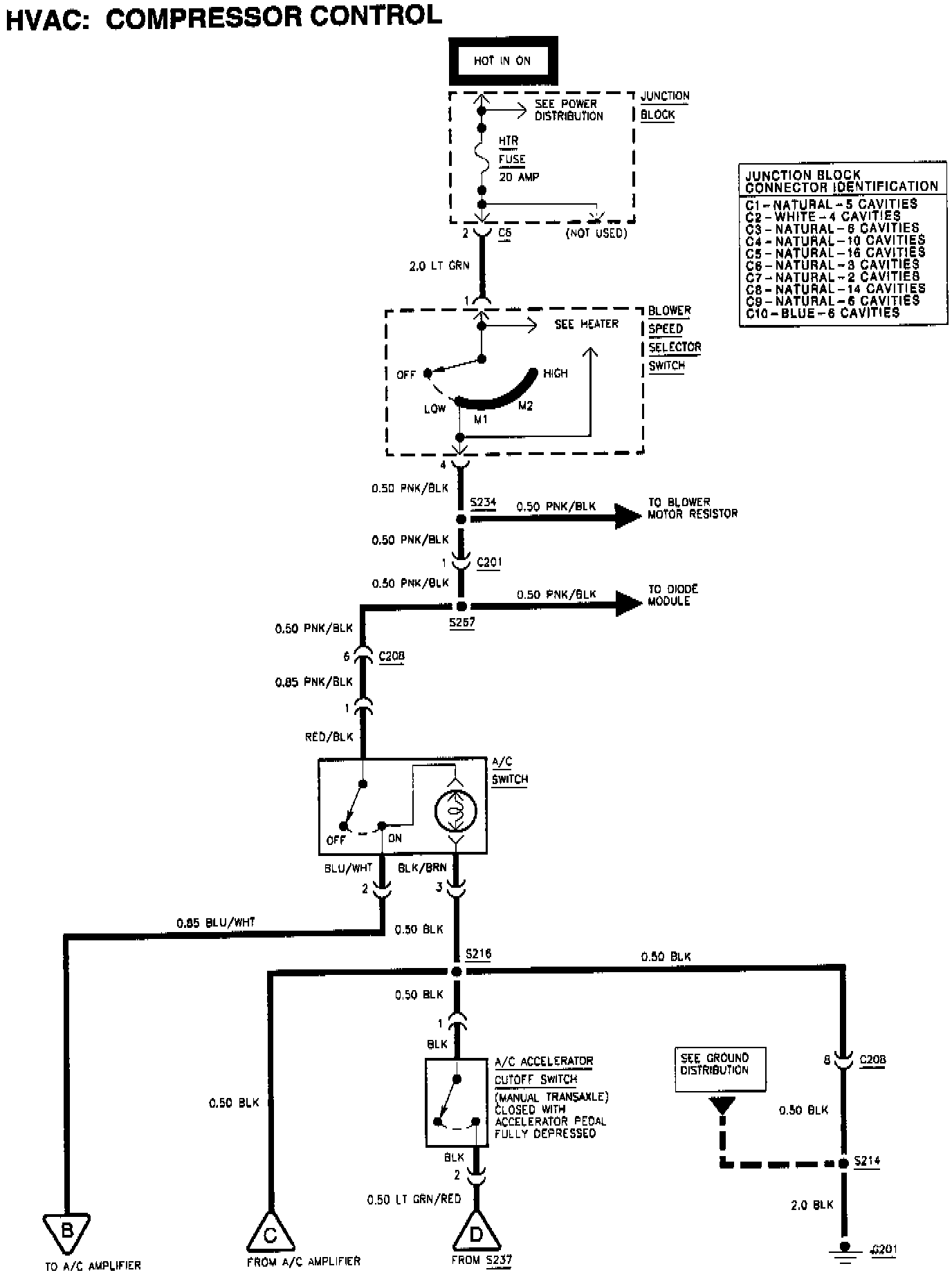
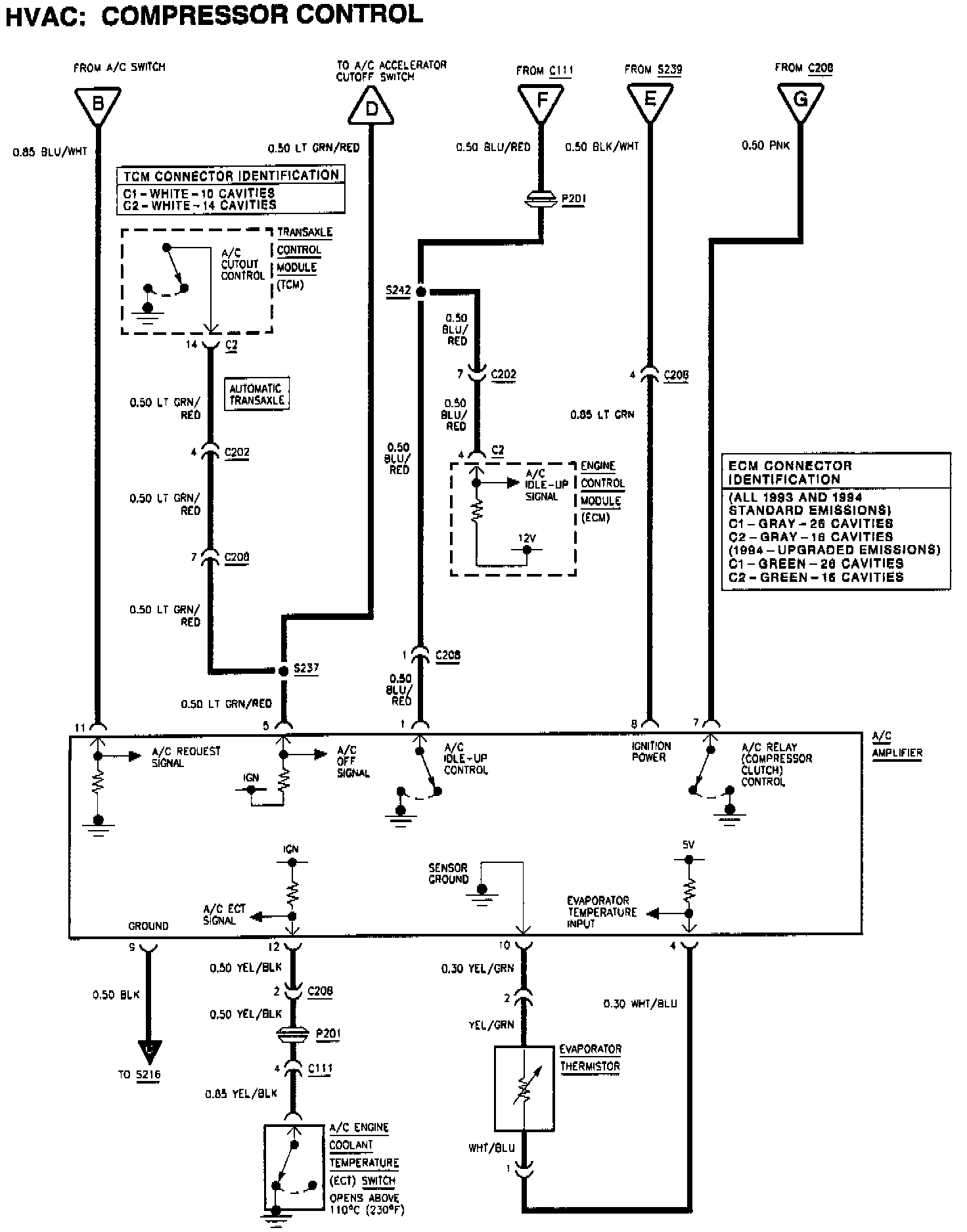
A/C Compressor Control - Revised Schematics

File In Section: 8 - Chassis/Body Electrical

Bulletin No.: 43-81-44

Date: December, 1994

Subject:
Section 8A-64 Revised Schematics

Models:
1993-94 Geo Metro











The schematics (8A-64-0, 8A-64-1 and 8A-64-2) serve to replace the respective schematics found in Section 8A-64, HVAC: Compressor Control of the 1993 Geo Metro Service Manual (ST370-93) and the 1994 Geo Metro Service Manual (ST370-94).

The location for Connector C2O8 as stated in the Component List of page 8A-64-5 in the 1993 Geo Metro Service Manual (ST370-93) and the 1994 Geo Metro Service Manual (ST370-94) is incorrect. The correct "LOCATION" for this should read as follows: "Main Harness to Inner A/C Harness, behind RH I/P near RH Kick Panel". The Component Location Views found in Section 8A-201 are correct.