Operation CHARM
: Car repair manuals for everyone.
Home
>>
Isuzu
>>
1989
>>
Impulse L4-2.3L (4ZD1)
>>
Repair and Diagnosis
>>
Diagrams
>>
Electrical Diagrams
>>
Computers and Control Systems
>>
System Diagram
Manuals through 2025 now available!
Our trusted friends have launched a new website named LEMON, which has newer manuals. It also contains all the CHARM manuals.
LEMON is the spiritual successor to CHARM, I recommend you try it!
Link:
lemon-manuals.la
or
lemon-manuals.org.ua
(Some people have issue connecting. LEMON is investigating. For now, use Firefox or change your DNS server)
Or, hide this message:
temporarily
or
permanently
System Diagram
Part 1
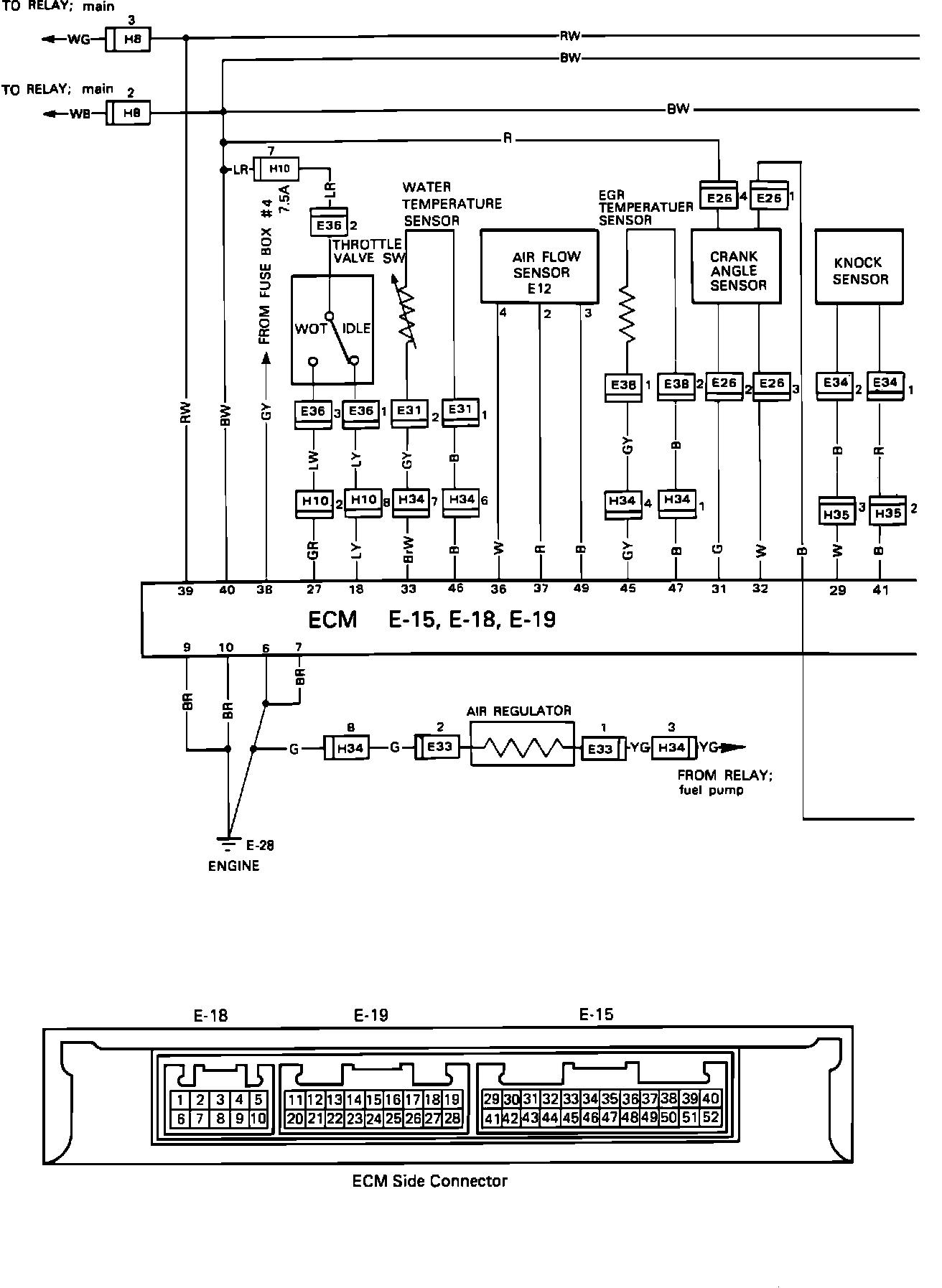
ECM Wiring Diagram (Part 1):
Part 2
ECM Wiring Diagram (Part 2):
WIRE COLOR CODE IDENTIFICATION
Black: B
Blue: L
Brown: Br
Gray: GY
Green: G
Light Green: Lg
Orange: O
Pink: P
Red: R
Sky Blue: Sb
Violet: V
White: W
Yellow: Y