Operation CHARM: Car repair manuals for everyone.
Manuals through 2025 now available!

Our trusted friends have launched a new website named LEMON, which has newer manuals. It also contains all the CHARM manuals.

LEMON is the spiritual successor to CHARM, I recommend you try it!

Link: lemon-manuals.la or lemon-manuals.org.ua

(Some people have issue connecting. LEMON is investigating. For now, use Firefox or change your DNS server)

Or, hide this message: temporarily or permanently

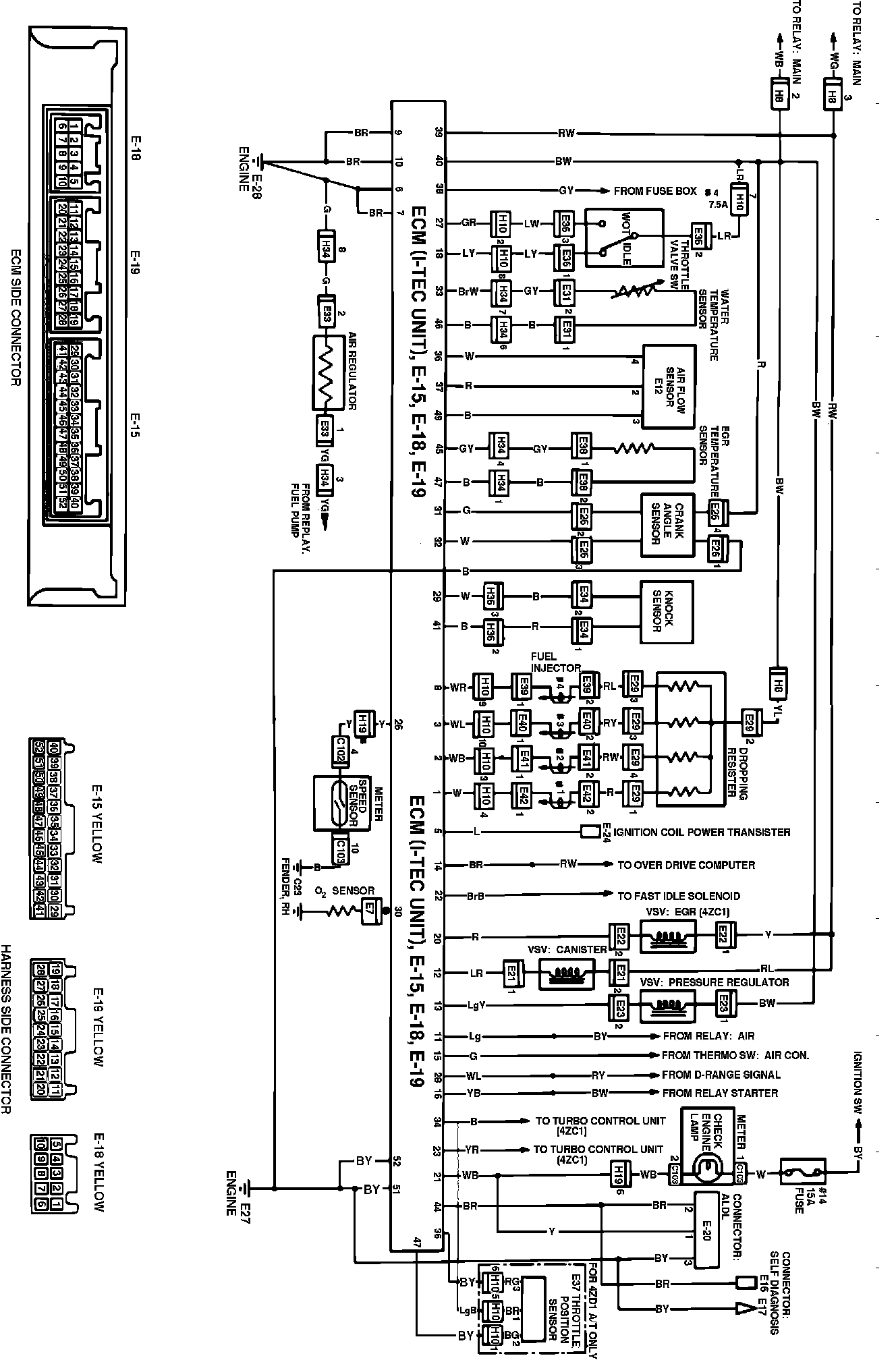
Engine Control Module: Description and Operation


An Electronic Control Module (ECM) monitors data from various sensors and controls functions such as air/fuel ratio, ignition system and timing, emission control devices and on-board diagnostics.

The ECM is a computer that judges air/fuel ratio as rich or lean according to oxygen sensor output voltage. Based on oxygen sensor and other input data, the ECM generates a controlling signal to the fuel injectors that regulates "ON" time. Because fuel pressure is a constant, the ECM controls air/fuel ratio adjustments by varying injector "ON" time.

When operating in "Open Loop," the ECM defaults to preprogrammed values for air/fuel ratio control. The system is in "Open Loop" before the oxygen sensor has warmed up to operating temperature. When operating in "Closed Loop," the ECM continually adjusts air/fuel ratio according to oxygen sensor input and operating information received from various other sensors.

To give an extra margin of safety in the event of system failure, the output of the ECM will automatically switch to fail-safe mode if a fault is detected in any of these components and/or systems:

Oxygen sensor
Coolant temperature sensor
Throttle valve switch system
Air flow sensor system

If a malfunction develops in the micro computer within the control unit, the back-up control system will maintain the minimum necessary ECM functions to permit vehicle operation.

This system incorporates self-diagnostic capability that is monitored via a dash mounted "Check Engine" light. When the system detects a fault in a monitored component and/or circuit, the light will come on and stay on (while the engine is running), alerting the driver to seek service. With intermittent problems, the light may come on and then go out, but a trouble code will be stored in ECM memory if correct parameters are met. The technician can then extract trouble codes from the ECM that will aid in the performance of efficient troubleshooting and repair.

In addition, the ECM also controls various emission control components through its operation of associated vacuum switching valves and solenoids.

ECM CONNECTIONS

ECM Wiring Diagram: