Operation CHARM: Car repair manuals for everyone.
Manuals through 2025 now available!

Our trusted friends have launched a new website named LEMON, which has newer manuals. It also contains all the CHARM manuals.

LEMON is the spiritual successor to CHARM, I recommend you try it!

Link: lemon-manuals.la or lemon-manuals.org.ua

(Some people have issue connecting. LEMON is investigating. For now, use Firefox or change your DNS server)

Or, hide this message: temporarily or permanently

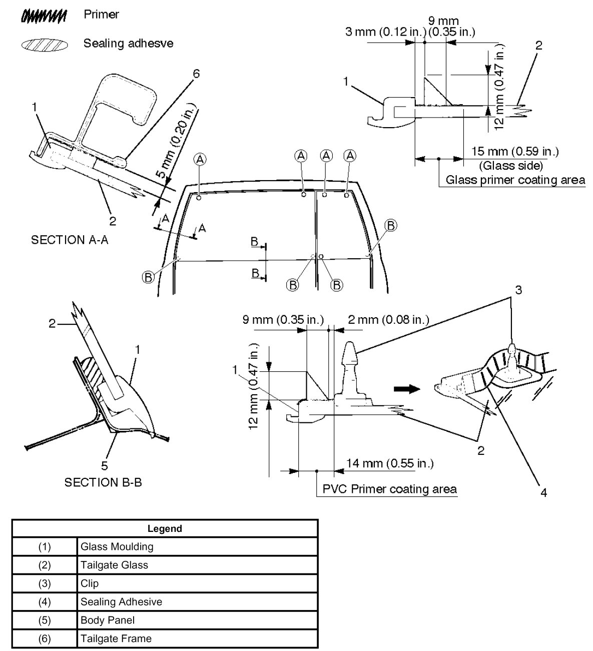
Liftgate Window Glass: Service and Repair

Tailgate Glass


Parts Location:






Removal

1. Remove battery ground cable.
2. Remove tailgate trim panel.
3. Remove tailgate sash trim cover (RH only).
4. Remove the tailgate frame cover.
5. Remove tailgate glass.







6. Remove tailgate glass clip.

Installation







1. Install the tailgate glass clip.







2. Install the tailgate glass (2).
- Clean the bonding surfaces of both the tailgate glass and the tailgate panel.
- Be absolutely sure to apply glass primer to the tailgate glass and PCV primer to the glass moulding (1).
- Apply a sealing adhesive to the circumference of the tailgate glass as shown.
- Insert the clip of the tailgate glass A portion into the tailgate panel hole to position the glass.
- Install the new tailgate glass clip to the clip of the tailgate glass B portion while sliding it, and bond the glass to the tailgate panel by applying pressure. Always use new tailgate glass clips.
- Cure the bonding at a temperature of 20-30 °C (68- 86 °F) for 24 hours.
- Check that the tailgate glass does not leak water.