Operation CHARM
: Car repair manuals for everyone.
Home
>>
Lexus
>>
2006
>>
LX 470 V8-4.7L (2UZ-FE)
>>
Repair and Diagnosis
>>
Power and Ground Distribution
>>
Fuse Block
>>
Locations
Manuals through 2025 now available!
Our trusted friends have launched a new website named LEMON, which has newer manuals. It also contains all the CHARM manuals.
LEMON is the spiritual successor to CHARM, I recommend you try it!
Link:
lemon-manuals.la
or
lemon-manuals.org.ua
(Some people have issue connecting. LEMON is investigating. For now, use Firefox or change your DNS server)
Or, hide this message:
temporarily
or
permanently
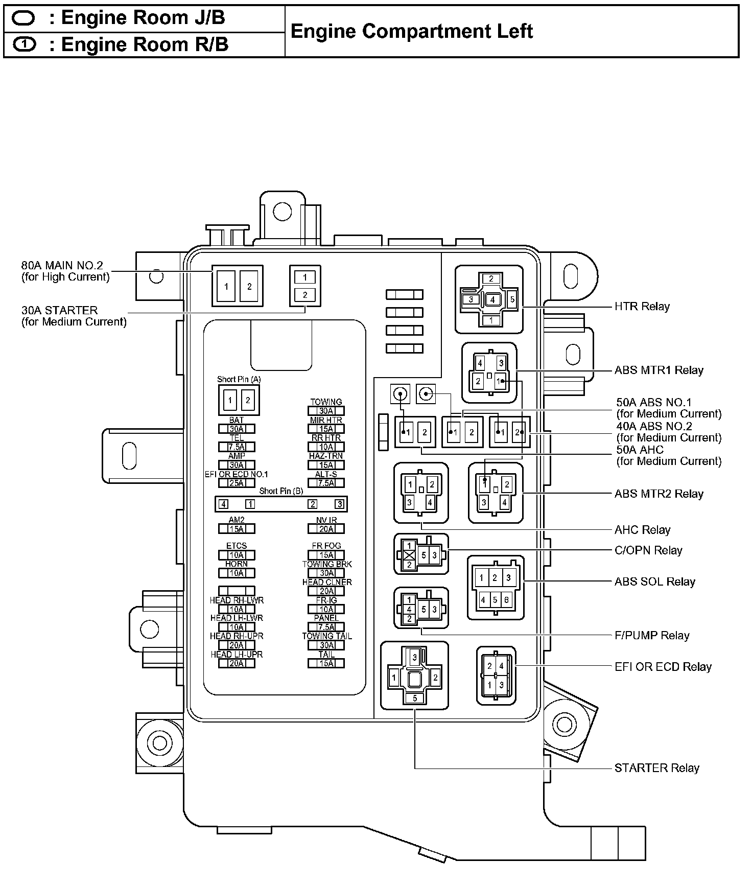
Fuse Block: Locations
Engine Room R/B - Left:
Engine Room R/B - Left:
Cowl Side J/B Left:
Cowl Side J/B - Left:
Cowl Side J/B Right:
Cowl Side J/B Right:
Engine Room J/B 8:
Fuse Details
Engine Compartment:
Instrument Panel:
Body:
Locations