Operation CHARM: Car repair manuals for everyone.
Manuals through 2025 now available!

Our trusted friends have launched a new website named LEMON, which has newer manuals. It also contains all the CHARM manuals.

LEMON is the spiritual successor to CHARM, I recommend you try it!

Link: lemon-manuals.la or lemon-manuals.org.ua

(Some people have issue connecting. LEMON is investigating. For now, use Firefox or change your DNS server)

Or, hide this message: temporarily or permanently

Fuse Block

Engine Room R/B - Engine Compartment Left:



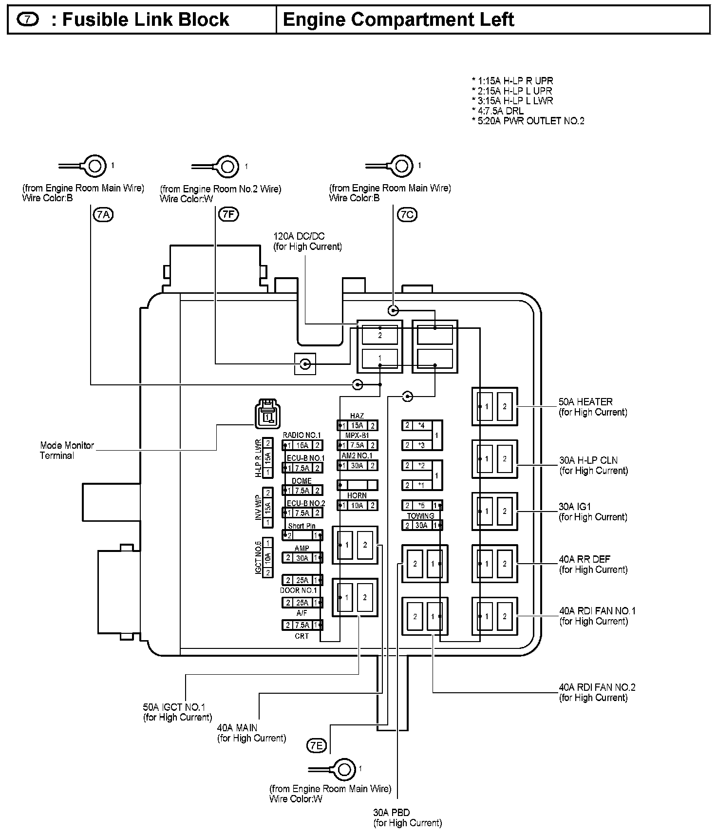
Fusible Link Block - Engine Compartment Left:



Instrument Panel J/B - Lower Finish Panel:



Instrument Panel J/B - Lower Finish Panel:



J/B No.2 - Engine Compartment Left:



J/B No.3 - Behind The Combination Meter:



J/B No.4 - Behind The Glove Box:



J/B No.4 - Behind The Glove Box:



Junction Connector (CAN Center) - Instrument Panel Brace LH:



Junction Connector (CAN RH) - Right Kick Panel:



R/B No.1 - Cowl Side Panel LH:



R/B No.3 - Engine Compartment Left:



R/B No.4 - Engine Compartment Left:



Rear J/B - Left Rear Quarter Panel:



O2 (Overhead J/B):