Operation CHARM: Car repair manuals for everyone.
Manuals through 2025 now available!

Our trusted friends have launched a new website named LEMON, which has newer manuals. It also contains all the CHARM manuals.

LEMON is the spiritual successor to CHARM, I recommend you try it!

Link: lemon-manuals.la or lemon-manuals.org.ua

(Some people have issue connecting. LEMON is investigating. For now, use Firefox or change your DNS server)

Or, hide this message: temporarily or permanently

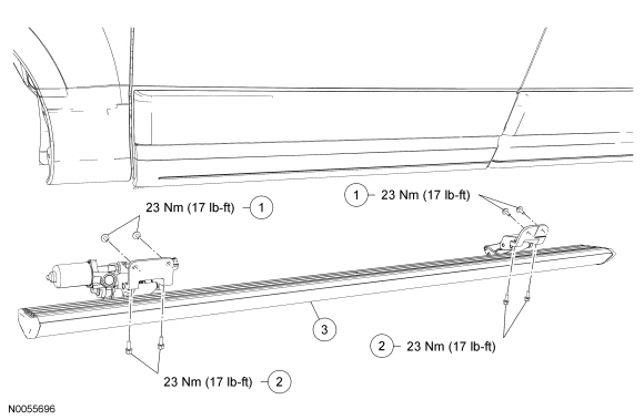
Auxiliary Step / Running Board: Service and Repair




Power Running Board (PRB)

Regular Wagon

NOTE: LH shown, RH similar.










Extended Wagon









Removal and Installation

1. With the vehicle in NEUTRAL, position it on a hoist.

2. NOTE: If the Power Running Board (PRB) cannot be extracted, extend the running board by hand.

Extend the PRB (Power Running Board).


3. Disconnect the PRB (Power Running Board) motor electrical connector.





4. NOTICE: An assistant is required to hold the Power Running Board (PRB) before removing the lower bolts. Failure to follow this instruction may result in damage to the component.

NOTE: Only 3 bolts shown.

Remove the front PRB (Power Running Board) upper and lower bolts.
- To install, tighten to 23 Nm (17 lb-ft).






5. Remove the rear PRB (Power Running Board) upper and lower bolts and remove the PRB (Power Running Board) assembly.
- To install, tighten to 23 Nm (17 lb-ft).






6. To install, reverse the removal procedure.