Operation CHARM: Car repair manuals for everyone.
Manuals through 2025 now available!

Our trusted friends have launched a new website named LEMON, which has newer manuals. It also contains all the CHARM manuals.

LEMON is the spiritual successor to CHARM, I recommend you try it!

Link: lemon-manuals.la or lemon-manuals.org.ua

(Some people have issue connecting. LEMON is investigating. For now, use Firefox or change your DNS server)

Or, hide this message: temporarily or permanently

Fire Suppression System: Service and Repair





FIRE EXTINGUISHER INSTALLATION [Arab Gulf Cooperation Council]

WARNING:
- Handling a front seat (with built-in side air bag) improperly can accidentally operate (deploy) the air bag, which may seriously injure you. Read the service warnings before handling a front seat (with built-in side air bag). (See. Air Bag System Service Warnings)

CAUTION:
- After removing a front seat, do not operate the slider lever. If the slider lever is operated, the left and right slide positions will deviate, and the slide adjuster may be damaged after the front seat is installed.

- Verify that there are no malfunctions in the sliding mechanism after installing a front seat.

- If any of the following work is performed, perform the seat weight sensor calibration using the M-MDS. (See. Programming and Relearning)

- Replacement with a new seat weight sensor

- Replacement with a new seat weight sensor control module

- Replacement with new passenger-side seat par

- Disassembly of the passenger-side seat

- If any of the following work is performed, perform the seat weight sensor inspection using the M-MDS. Component Tests and General Diagnostics

- Removal of the passenger-side seat

- Loosening and retightening of passenger-side seat fixing bolts

1. Switch the ignition to off.

2. Disconnect the negative battery cable and wait 1 min or more. Removal and Replacement Removal and Replacement Removal and Replacement

3. Remove the following parts:
a. Front seat Removal and Replacement

b. Audio amplifier (Vehicles with Bose(R)) Service and Repair

c. Front scuff plate Front Scuff Plate Removal/Installation

d. Front side trim Front Side Trim Removal/Installation

4. Partially peel back the floor covering. Service and Repair

5. Cut the passenger-side rear heater duct cover shown in the figure.

CAUTION:
- When cutting out the portion of the passenger-side rear heat duct, do not cut it outside of the indicated area shown in the figure. Otherwise, the airflow passage could be damaged and cause the air from the heater to leak.





6. Drill a 7 mm {0.3 in} diameter hole at the point shown in the figure.






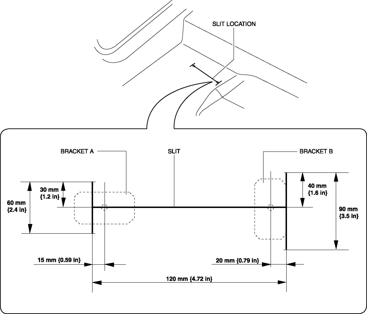
7. Return the floor covering to its original position and open the slit at the position shown in the figure.






8. Install in the order shown in the figure.










9. Apply silicone sealant to the shaded area on the under body as shown in the figure.






10. Install the following parts:
a. Front side trim Front Side Trim Removal/Installation

b. Front scuff plate Front Scuff Plate Removal/Installation

c. Audio amplifier (Vehicles with Bose(R)) Service and Repair

d. Front seat Removal and Replacement