Operation CHARM: Car repair manuals for everyone.
Manuals through 2025 now available!

Our trusted friends have launched a new website named LEMON, which has newer manuals. It also contains all the CHARM manuals.

LEMON is the spiritual successor to CHARM, I recommend you try it!

Link: lemon-manuals.la or lemon-manuals.org.ua

(Some people have issue connecting. LEMON is investigating. For now, use Firefox or change your DNS server)

Or, hide this message: temporarily or permanently

Inspection Procedure 1

Communication with Scan Tool Is Not Possible. (Communication with All Systems Is Not Possible.)

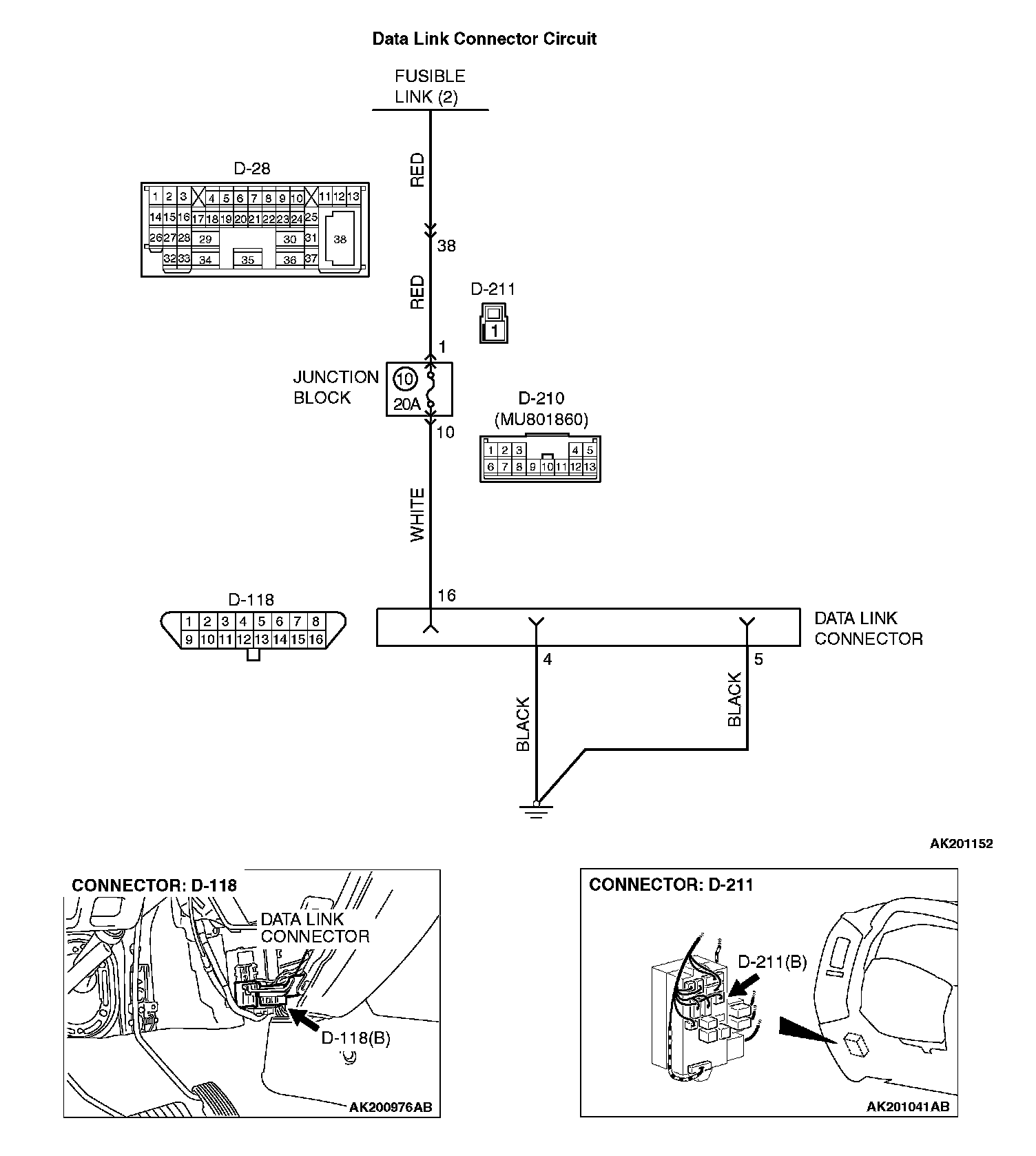
Data Link Connector Circuit Part 1:




Data Link Connector Circuit Part 2:






CIRCUIT OPERATION
- A battery positive voltage is applied on the data link connector power terminal (terminal No. 16). The ground terminals (terminal No. 4, No. 5) are grounded to the vehicle body.

COMMENT
- The cause is probably a defect in power supply system (including ground) for the on-board diagnostic test mode line.

TROUBLESHOOTING HINTS (The most likely causes for this case:)
- Malfunction of the data link connector.
- Damaged harness wire.

DIAGNOSIS

STEP 1. Measure the power supply voltage at data link connector D-118.







1. Measure voltage between terminal No. 16 and ground.
- Voltage should be battery positive voltage.

Q: Is battery positive voltage (approximately 12 volts) present?

YES: Go to Step 2.

NO: Check harness connectors D-210, D-211, D-28 at intermediate connector for damage, and repair or replace as required. Refer to Harness Connector Inspection. If intermediate connector D-210, D-211, D-28 are in good condition, repair an open circuit between fusible link (2)and data link connector D-118 (terminal No. 16). Then confirm that the malfunction symptom is eliminated.

STEP 2. Check the continuity at data link connector D-118.







1. Check for the continuity between terminal No. 4, No. 5 and ground.
- Should be less than 2 Ohms.

Q: Does continuity exist?

YES: Replace the scan tool. Then confirm that the malfunction symptom is eliminated.

NO: Repair an open circuit or harness damage between data link connector D-118 (terminal No. 4, No. 5) and ground. Then confirm that the malfunction symptom is eliminated.