Operation CHARM: Car repair manuals for everyone.
Manuals through 2025 now available!

Our trusted friends have launched a new website named LEMON, which has newer manuals. It also contains all the CHARM manuals.

LEMON is the spiritual successor to CHARM, I recommend you try it!

Link: lemon-manuals.la or lemon-manuals.org.ua

(Some people have issue connecting. LEMON is investigating. For now, use Firefox or change your DNS server)

Or, hide this message: temporarily or permanently

Inspection Procedure 6

When "CRUISE" (MAIN) Switch is Turned "ON", "CRUISE" Indicator Light Inside Combination Meter does not Illuminate

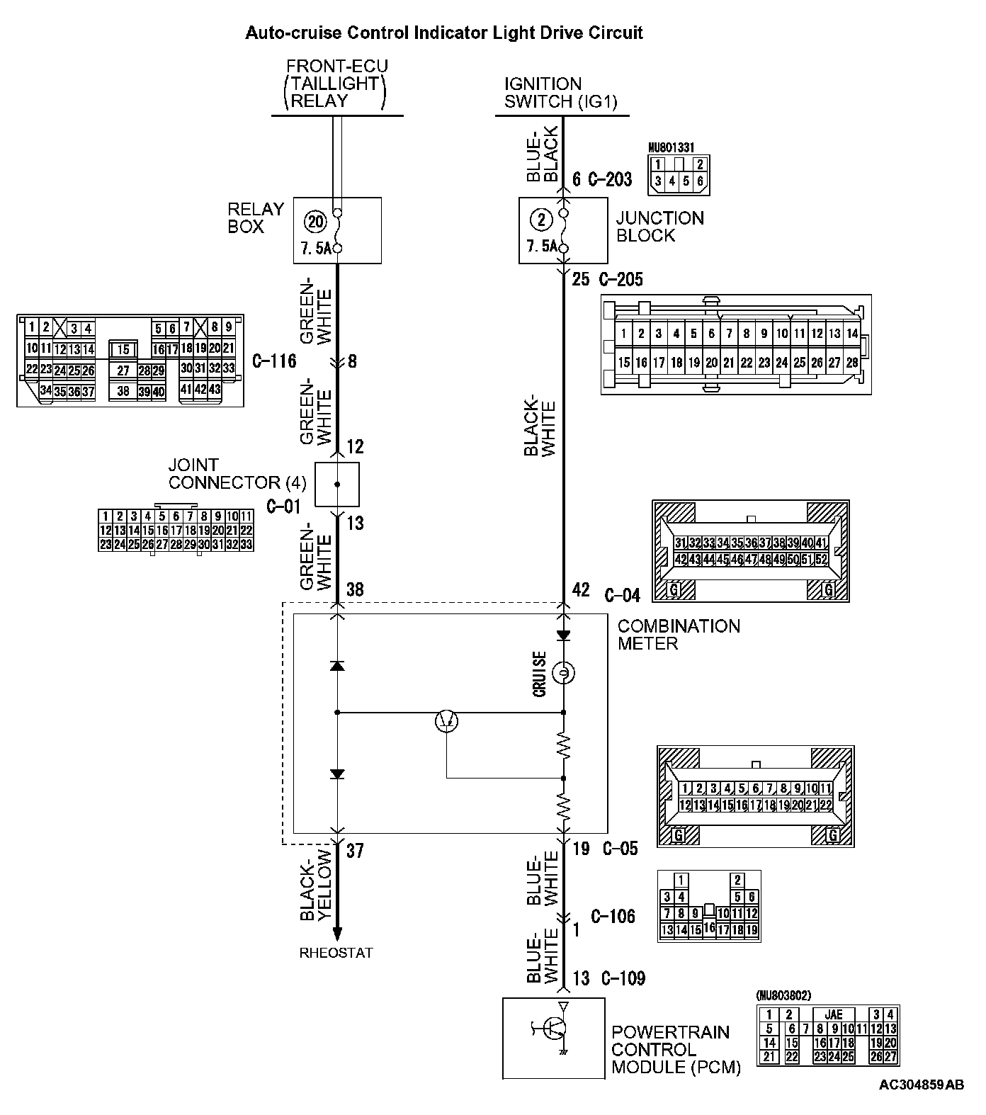
Auto-Cruise Control Indicator Light Drive Circuit Part 1:




Auto-Cruise Control Indicator Light Drive Circuit Part 2:






CIRCUIT OPERATION
The PCM detects "CRUISE" (MAIN) switch "ON" signal to illuminate the "CRUISE" indicator light on the combination meter.

COMMENT
Connector(s), wiring harness between the PCM and he combination meter, the combination meter and he PCM may be defective. The auto-cruise control witch input signal circuit may also be defective.

TROUBLESHOOTING HINTS
- Malfunction of the auto-cruise control switch
- Malfunction of the combination meter
- Damaged harness or connector
- Malfunction of the PCM

DIAGNOSIS

Required Special Tool:
- MB991958: Scan tool (MUT-III sub assembly)
- MB991824: V.C.I.
- MB991827: MUT-III USB cable
- MB991911: MUT-III main harness B

STEP 1. Check that the indicator light inside the combination meter illuminates.

1. Turn the ignition switch to the "ON" position.
2. Check the indicator lights other than "CRUISE" indicator light illuminate.
3. Turn the ignition switch to the "LOCK" (OFF) position.

Q: Do the indicator lights other than the "CRUISE" indicator light illuminate normally?

YES: Go to Step 6.

NO: Go to Step 2.

STEP 2. Check combination meter connector C-04 and junction block connector C-205 for loose, corroded or damaged terminals, or terminals pushed back in the connector.

Q: Are the connectors and terminals in good condition?

YES: Go to Step 3.

NO: Repair or replace the damaged components. (Refer to Harness Connector Inspection). Then go to Step 13.







STEP 3. Check the harness wire between combination meter connector C-04 terminal 42 and junction block connector C-205 terminal 25 for damage.

Q: Is the harness wire in good condition?

YES: Go to Step 4.

NO: Repair the damaged harness wire. Then go to Step 13.




STEP 4. Check fuse number 2 at the junction block.

Q: Is the fuse in good condition?

YES: Go to Step 5.

NO: Replace the fuse. Then go to Step 13.

STEP 5. Check that the indicator light inside the combination meter illuminates.

1. Turn the ignition switch to the "ON" position.
2. Check that the indicator light inside the combination meter illuminates.
3. Turn the ignition switch to the "LOCK" (OFF) position.

Q: Does the indicator light illuminate normally.

YES: It can be assumed that this malfunction is intermittent. (Refer to How to Use Troubleshooting/Inspection Service Points - How to Cope with Intermittent Malfunction).

NO: Replace the combination meter. (Refer to Combination meter assembly). Then go to Step 13.




STEP 6. Using scan tool MB991958, read the diagnostic trouble code.

CAUTION: To prevent damage to scan tool MB991958, always turn the ignition switch to the "LOCK" (OFF) position before connecting or disconnecting scan tool MB991958.

1. Connect scan tool MB991958 to the data link connector.
2. Turn the ignition switch to the "ON" position.
3. Set scan tool MB991958 to read the diagnostic trouble codes.
4. Turn the ignition switch to the "LOCK" (OFF) position.
5. Disconnect scan tool MB991958.

Q: Is DTC 15 set?

YES: Repair the auto-cruise control switch system. (Refer to Diagnostic Trouble Code Procedures - DTC 15: Auto-cruise Control Switch System). Then go to Step 13. DTC 15

NO: Go to Step 7.

STEP 7. Measure the power supply voltage at PCM connector C-109 by backprobing




1. Do not disconnect PCM connector C-109.
2. Turn the ignition switch to the "ON" position.




3. Measure the power supply voltage between PCM connector C-109 terminal 13 and ground by backprobing.
- When "CRUISE" (MAIN) switch to the "ON" position, the voltage should measure 0.5 volt or less.
- When "CRUISE" (MAIN) switch to the "OFF" position, the voltage should measure battery positive voltage (approximately 12 volts).

4. Turn the ignition switch to the "LOCK" (OFF) position.

Q: Is the measured voltage 0.5 volt or less when "CRUISE" (MAIN) switch to the "ON" position, and battery positive voltage (approximately 12 volts) when "CRUISE" (MAIN) switch to the "OFF" position?

YES: Go to Step 12.

NO: Go to Step 8.










STEP 8. Check combination meter connector C-05, intermediate connector C-106 and PCM connector C-109 for loose, corroded or damaged terminals, or terminals pushed back in the connector.

Q: Are the connectors and terminals in good condition?

YES: Go to Step 9.

NO: Repair or replace the damaged components. (Refer to Harness Connector Inspection). Then go to Step 13.







STEP 9. Check the harness wire between combination meter connector C-05 terminal 19 and PCM connector C-109 terminal 13 for damage.

Q: Are the harness wires in good condition?

YES: Go to Step 10.

NO: Repair the damaged harness wire. Then go to Step 13.

STEP 10. Check the auto-cruise control indicator light bulb.

1. Remove the combination meter. (Refer to Combination meter assembly).
2. Check the auto-cruise control indicator light bulb.

Q: Is the bulb in good condition?

YES: Install the combination meter. (Refer to Combination meter assembly). Then go to Step 11.

NO: Replace the bulb and install the combination meter. (Refer to Combination meter assembly). Then go to Step 13.

STEP 11. Measure the terminal voltage at PCM connector C-109.




1. Disconnect PCM connector C-109 measure the harness connector.
2. Turn the ignition switch to the "ON" position.




3. Measure the terminal voltage between PCM connector C-109 terminal 13 and ground.
- When the ignition switch to the "ON" position, the voltage should measure battery positive voltage (approximately 12 volts).
- When the ignition switch to the "LOCK" (OFF) position, the voltage should measure 0.5 volt or less.

4. Turn the ignition switch to the "LOCK" (OFF) position.
5. Connect PCM connector C-109.

Q: Is the measured voltage battery positive voltage (approximately 12 volts) when ignition switch to the "ON" position, and 0.5 volt or less when ignition switch to the "OFF" (LOCK) position?

YES: Go to Step 12.

NO: Replace the combination meter. (Refer to Combination meter assembly). Then go to Step 13.

STEP 12. Check the symptoms.

Q: Does the auto-cruise control indicator light illuminate when "CRUISE" (MAIN) switch is turned "ON"?

YES: It can be assumed that this malfunction is intermittent. (Refer to How to Use Troubleshooting/Inspection Service Points - How to Cope with Intermittent Malfunction).

NO: Replace the PCM. [Refer to Power Control Module (PCM)]. Then go to Step 13.

STEP 13. Check the symptoms.

Q: Does the auto-cruise control indicator light illuminate when "CRUISE" (MAIN) switch is turned "ON"?

YES: Return to Step 1.

NO: The procedure is complete.