Operation CHARM: Car repair manuals for everyone.
Manuals through 2025 now available!

Our trusted friends have launched a new website named LEMON, which has newer manuals. It also contains all the CHARM manuals.

LEMON is the spiritual successor to CHARM, I recommend you try it!

Link: lemon-manuals.la or lemon-manuals.org.ua

(Some people have issue connecting. LEMON is investigating. For now, use Firefox or change your DNS server)

Or, hide this message: temporarily or permanently

Diagnostic Item 16

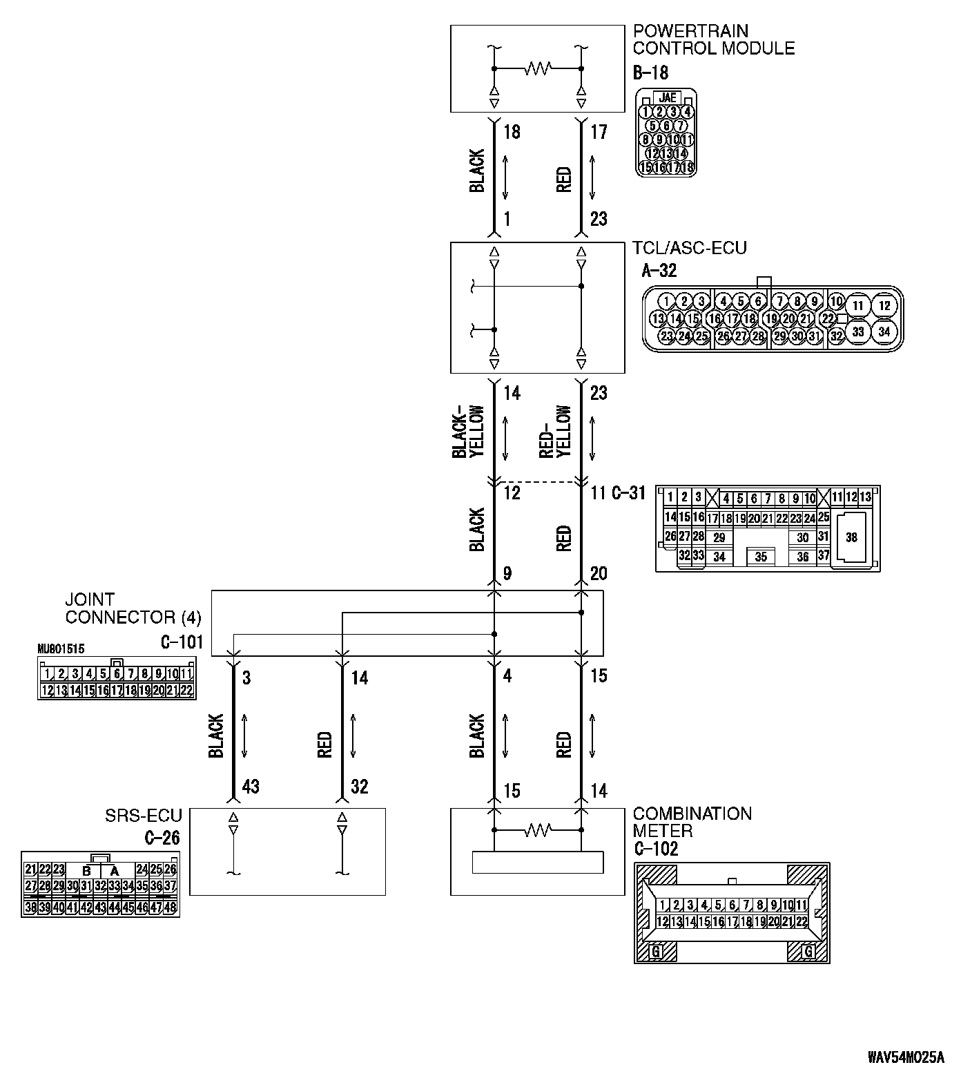
DIAGNOSTIC ITEM 16: Diagnose the lines between CAN main bus line and the SRS-ECU

CAUTION: When servicing a CAN bus line, ground yourself by touching a metal object such as an unpainted water pipe. If you fail to do so, a component connected to the CAN bus line may be damaged.

(Part 1):




(Part 2):






TROUBLE JUDGMENT
If the M.U.T.-III cannot received signals from the SRS-ECU, CAN bus line connector(s) are broken or an open circuit has occurred.

COMMENTS ON TROUBLE SYMPTOM
The wiring harness wire or connectors may have loose, corroded, or damage terminals, or terminals pushed back in the connector, or the SRS-ECU may be defective.

TROUBLESHOOTING HINTS
- The wiring harness or connectors may have loose, corroded, or damage terminals, or terminals pushed back in the connector
- The SRS-ECU may be defective

DIAGNOSIS

Required Special Tools:
- MB991223: Harness Set
- MB992006: Extra Fine Probe

STEP 1. Check joint connector (4) C-101 and SRS-ECU connector C-26 for loose, corroded or damaged terminals, or terminals pushed back in the connector.









NOTE: For the removal of the joint connector.

CAUTION: The strand end of the twist wire should be within 10 cm (4 inches) from the connector.






Check the joint connector at the wiring harness side for loose, corroded or damaged terminals, or terminals pushed back in the connector, and also check the short pin behind the connector for corrosion, deformation and delamination.

Q: Are joint connector (4) C-101 and SRS-ECU connector C-26 in good condition?

YES : Go to Step 2.

NO : Repair the damaged parts. Replace the joint connector as necessary.

STEP 2. Check the CAN bus lines between joint connector (4) and the SRS-ECU. Measure the resistance between joint connector (4) C-101 and SRS-ECU connector C-26.

CAUTION:
- A digital multimeter should be used.
- The test wiring harness should be used.










1. Disconnect joint connector (4) C-101 and SRS-ECU connector C-26, and measure the resistance between each wiring harness side connector.
2. Turn the ignition switch to the "LOCK" (OFF) position.

CAUTION: Disconnect the negative battery terminal.

3. Disconnect the negative battery terminal.






4. Measure the resistance between joint connector (4) terminal 3 and SRS-ECU connector terminal 43.

OK: 2 ohms or less






5. Measure the resistance between joint connector (4) terminal 14 and SRS-ECU connector terminal 32.

OK: 2 ohms or less

CAUTION: Strictly observe the specified wiring harness repair procedure.

Q: Do all the resistances measure 2 ohms or less?

YES : [All the resistances measure 2 ohms or less] Power supply to the SRS-ECU may be suspected. Diagnose the SRS system. Refer to SRS air bag diagnosis. Introduction to SRS Diagnosis

NO : [If either of the resistances measures more than 2 ohms or all the resistances measure more than 2 ohms] Repair the wiring harness between joint connector (4) and the SRS-ECU connector.