Operation CHARM: Car repair manuals for everyone.
Manuals through 2025 now available!

Our trusted friends have launched a new website named LEMON, which has newer manuals. It also contains all the CHARM manuals.

LEMON is the spiritual successor to CHARM, I recommend you try it!

Link: lemon-manuals.la or lemon-manuals.org.ua

(Some people have issue connecting. LEMON is investigating. For now, use Firefox or change your DNS server)

Or, hide this message: temporarily or permanently

Diagnostic Item 7

DIAGNOSTIC ITEM 7: Diagnose terminator resistors at both ends

CAUTION: When servicing a CAN bus line, ground yourself by touching a metal object such as an unpainted water pipe. If you fail to do so, a component connected to the CAN bus line may be damaged.

(Part 1):




(Part 2):






TROUBLE JUDGMENT
The terminator resistors at both ends of CAN bus lines may be damaged, when the resistance between the CAN bus lines (CAN_L and H lines) is more than 2 ohms.

COMMENTS ON TROUBLE SYMPTOM
The CAN bus line harness wires or connectors may be damaged (open circuit may be present on CAN_L or CAN_H line between the data link connector and CAN main bus lines, or CAN main bus lines may be open at both sides), or the combination meter and the powertrain control module may be defective.

TROUBLESHOOTING HINTS
- The wiring harness or connectors may have loose, corroded, or damage terminals, or terminals pushed back in the connector
- The combination meter may be defective
- The TCL/ASC-ECU may be defective
- The powertrain control module may be defective

DIAGNOSIS

Required Special Tools:
- MB991223: Harness Set
- MB992006: Extra Fine Probe
- MB991952: ABS Check Harness
- MB991923: Power Plant ECU Check Harness

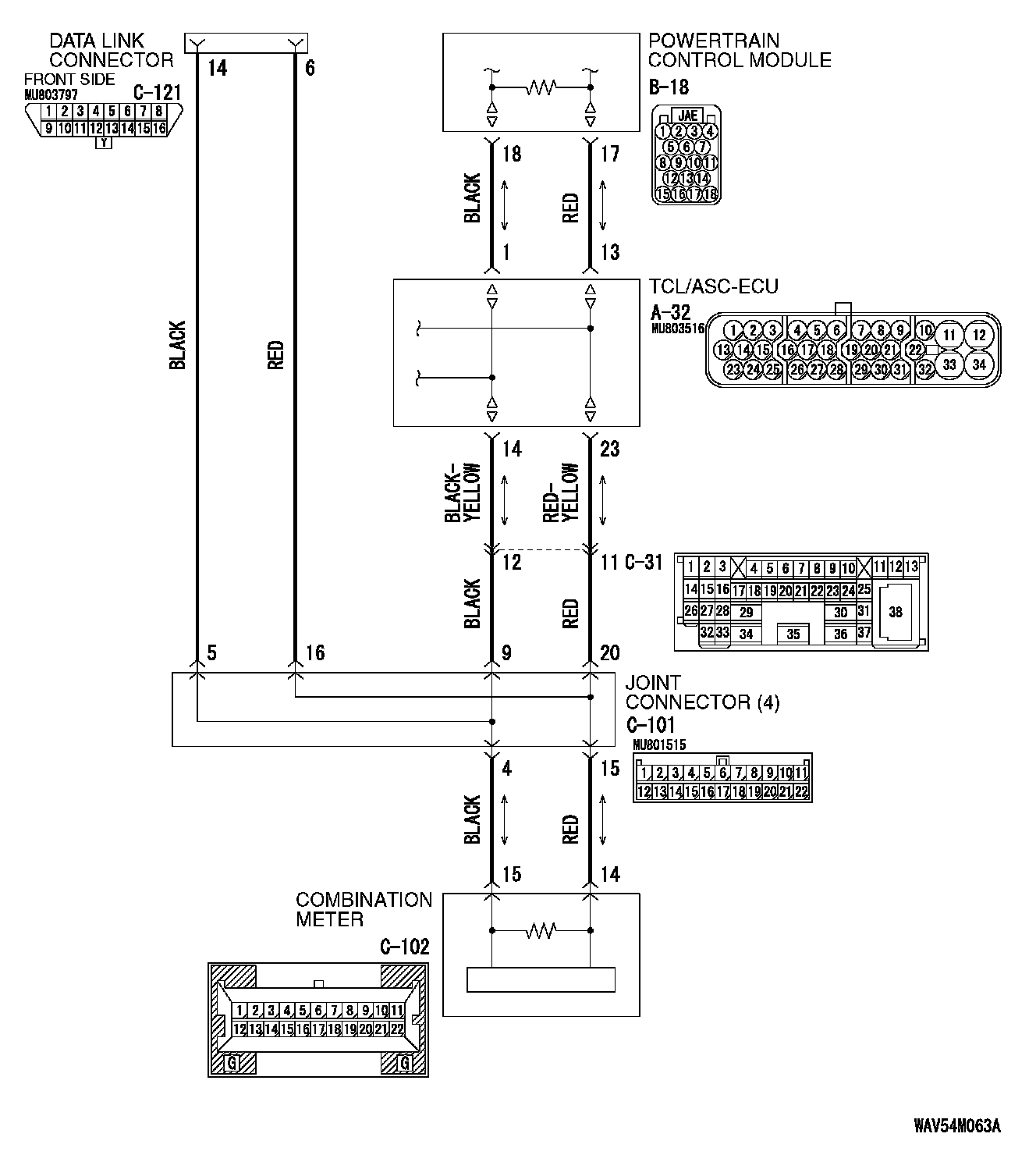
STEP 1. Check intermediate connector C-31 for loose, corroded or damaged terminals, or terminals pushed back in the connector.






CAUTION: The strand end of the twist wire should be within 10 cm (4 inches) from the connector.

Q: Is intermediate connector C-31 in good condition?

YES : Go to Step 2.

NO : Repair the damaged parts.

STEP 2. Check the instrument panel wiring harness side CAN bus lines (communication line including the combination meter). Measure the resistance at intermediate connector C-31.

CAUTION:
- A digital multimeter should be used.
- The test wiring harness should be used.







1. Disconnect intermediate connector C-31, and measure the resistance at its female side connector (instrument panel wiring harness side).
2. Turn the ignition switch to the "LOCK" (OFF) position.

CAUTION: Disconnect the negative battery terminal.

3. Disconnect the negative battery terminal.






4. Measure the resistance between intermediate connector C-31 terminals 11 and 12.

OK: 120 ± 20 ohms

Q: Does the resistance measure 120 ± 20 ohms?

YES : [The resistance measures 120 ± 20 ohms] Go to Step 8.

NO : [The resistance does not measure 120 ± 20 ohms] Go to Step 3.

STEP 3. Check joint connector (4) C-101 and combination meter connector C-102 for loose, corroded or damaged terminals, or terminals pushed back in the connector.






NOTE: For the removal of the joint connector.

CAUTION: The strand end of the twist wire should be within 10 cm (4 inches) from the connector.






Check the joint connector at the wiring harness side for loose, corroded or damaged terminals, or terminals pushed back in the connector, and also check the short pin behind the connector for corrosion, deformation and delamination.

Q: Are joint connector (4) C-101 and combination meter connector C-102 in good condition?

YES : Go to Step 4.

NO : Repair the damaged parts. Replace the joint connector as necessary. Then go to Step 2.

STEP 4. Check the CAN bus lines (communication line including the combination meter) between joint connector (4) and the combination meter. Measure the resistance at joint connector (4) C-101.

CAUTION:
- A digital multimeter should be used.
- The test wiring harness should be used.







1. Disconnect joint connector (4) C-101, and measure the resistance at the wiring harness side of joint connector (4) C-101.
2. Turn the ignition switch to the "LOCK" (OFF) position.

CAUTION: Disconnect the negative battery terminal.

3. Disconnect the negative battery terminal.






4. Measure the resistance between joint connector (4) terminals 4 and 15.

OK: 120 ± 20 ohms

Q: Does the resistance measure 120 ± 20 ohms?

YES : [The resistance measures 120 ± 20 ohms] Go to Step 7.

NO : [The resistance does not measure 120 ± 20 ohms] Go to Step 5.

STEP 5. Check the CAN bus lines (communication line only) between joint connector (4) and the combination meter. Measure the resistance at joint connector (4) C-101 and combination meter connector C-102.

CAUTION:
- A digital multimeter should be used.
- The test wiring harness should be used.







1. Disconnect joint connector (4) C-101 and combination meter connector C-102, and measure the resistance between each wiring harness side connector.
2. Turn the ignition switch to the "LOCK" (OFF) position.

CAUTION: Disconnect the negative battery terminal.

3. Disconnect the negative battery terminal.






4. Measure the resistance between joint connector (4) terminal 4 and combination meter connector terminal 15.

OK: 2 ohms or less






5. Measure the resistance between joint connector (4) terminal 15 and combination meter connector terminal 14.

OK: 2 ohms or less

CAUTION: Strictly observe the specified wiring harness repair procedure.

Q: Do all the resistances measure 2 ohms or less?

YES : [All the resistances measure 2 ohms or less] Go to Step 6.

NO : [If either of the resistances measures more than 2 ohms or all the resistances measure more than 2 ohms] Repair the wiring harness between joint connector (4) and the combination meter connector, and then go to Step 2.

STEP 6. Check the terminator resistor inside the combination meter. Measure the resistance at combination meter connector C-102.

CAUTION: A digital multimeter should be used.






1. Disconnect combination meter C-102, and measure the resistance at the equipment side of combination meter connector C-102.






2. Measure the resistance between combination meter connector terminals 14 and 15.

OK: 120 ± 20 ohms

Q: Does the resistance measure 120 ± 20 ohms?

YES : [The resistance measures 120 ± 20 ohms] Go to Step 2.

NO : [The resistance does not measure 120 ± 20 ohms] Replace the combination meter, and then go to Step 2.

STEP 7. Check the CAN bus lines (communication line only) between intermediate connector C-31 and joint connector (4). Measure the resistance at intermediate connector C-31 and joint connector (4) C-101.

CAUTION:
- A digital multimeter should be used.
- The test wiring harness should be used.







1. Disconnect joint connector (4) C-101 and intermediate connector C-31, and measure the resistance between the wiring harness side connector of joint connector (4) C-101 and the female side connector of intermediate connector C-31 (instrument panel wiring harness side).
2. Turn the ignition switch to the "LOCK" (OFF) position.

CAUTION: Disconnect the negative battery terminal.

3. Disconnect the negative battery terminal.






4. Measure the resistance between joint connector (4) terminal 9 and intermediate connector C-31 terminal 12.

OK: 2 ohms or less






5. Measure the resistance between joint connector (4) terminal 20 and intermediate connector C-31 terminal 11.

OK: 2 ohms or less

CAUTION: Strictly observe the specified wiring harness repair procedure.

Q: Do all the resistances measure 2 ohms or less?

YES : [All the resistances measure 2 ohms or less] Go to Step 2.

NO : [If either of the resistances measures more than 2 ohms or all the resistances measure more than 2 ohms] Repair the wiring harness between joint connector (4) and the intermediate connector, and then go to Step 2.

STEP 8. Check the front wiring harness side CAN bus lines (communication line including the powertrain control module and the TCL/ASC-ECU). Measure the resistance at intermediate connector C-31.

CAUTION:
- A digital multimeter should be used.
- The test wiring harness should be used.







1. Disconnect intermediate connector C-31, and measure the resistance at the male side (at front wiring harness side).
2. Turn the ignition switch to the "LOCK" (OFF) position.

CAUTION: Disconnect the negative battery terminal.

3. Disconnect the negative battery terminal.






4. Measure the resistance between intermediate connector C-31 terminals 11 and 12.

OK: 120 ± 20 ohms

Q: Does the resistance measure 120 ± 20 ohms?

YES : [The resistance measures 120 ± 20 ohms] Go to Step 15.

NO : [The resistance does not measure 120 ± 20 ohms] Go to Step 9.

STEP 9. Check TCL/ASC-ECU connector A-32 and powertrain control module connector B-18 for loose, corroded or damaged terminals, or terminals pushed back in the connector.









CAUTION: The strand end of the twist wire should be within 10 cm (4 inches) from the connector.

Q: Are TCL/ASC-ECU connector A-32 and powertrain control module connector B-18 in good condition?

YES : Go to Step 10.

NO : Repair the damaged parts. Then go to Step 8.

STEP 10. Check the CAN bus lines between the TCL/ASC-ECU and the powertrain control module (communication line including the powertrain control module). Measure the resistance at TCL/ASC-ECU connector A-32.

CAUTION:
- A digital multimeter should be used.
- The test wiring harness should be used.







1. Disconnect TCL/ASC-ECU connector A-32, and measure the resistance at the wiring harness side of TCL/ASC-ECU connector A-32.
2. Turn the ignition switch to the "LOCK" (OFF) position.

CAUTION: Disconnect the negative battery terminal.

3. Disconnect the negative battery terminal.






4. Measure the resistance between TCL/ASC-ECU connector terminals 1 and 13.

OK: 120 ± 20 ohms

Q: Does the resistance measure 120 ± 20 ohms?

YES : [The resistance measures 120 ± 20 ohms] Go to Step 13.

NO : [The resistance does not measure 120 ± 20 ohms] Go to Step 11.

STEP 11. Check the CAN bus lines (communication line only) between TCL/ASC-ECU and the powertrain control module. Measure the resistance at TCL/ASC-ECU connector A-32 and powertrain control module connector B-18.

CAUTION:
- A digital multimeter should be used.
- The test wiring harness should be used.










1. Disconnect TCL/ASC-ECU connector A-32 and powertrain control module connector B-18, and measure the resistance between each wiring harness side connector.
2. Turn the ignition switch to the "LOCK" (OFF) position.

CAUTION: Disconnect the negative battery terminal.

3. Disconnect the negative battery terminal.






4. Measure the resistance between TCL/ASC-ECU connector terminal 1 and powertrain control module connector terminal 18.

OK: 2 ohms or less






5. Measure the resistance between TCL/ASC-ECU connector terminal 13 and powertrain control module connector terminal 17.

OK: 2 ohms or less

CAUTION: Strictly observe the specified wiring harness repair procedure.

Q: Do all the resistances measure 2 ohms or less?

YES : [All the resistances measure 2 ohms or less] Go to Step 12.

NO : [If either of the resistances measures more than 2 ohms or all the resistances measure more than 2 ohms] Repair the wiring harness between the TCL/ASC-ECU connector and the powertrain control module connector, and then go to Step 8.

STEP 12. Check the terminator resistor inside the powertrain control module. Measure the resistance at powertrain control module connector B-18.

CAUTION: A digital multimeter should be used.






1. Disconnect powertrain control module connector B-18, and measure the resistance at the equipment side of powertrain control module connector B-18.






2. Measure the resistance between powertrain control module connector terminals 17 and 18.

OK: 120 ± 20 ohms

Q: Does the resistance measure 120 ± 20 ohms?

YES : [The resistance measures 120 ± 20 ohms] Go to Step 8.

NO : [The resistance does not measure 120 ± 20 ohms] Replace the powertrain control module, and then go to Step 8.

STEP 13. Check the CAN bus lines (communication line only) between intermediate connector C-31 and the TCL/ASC-ECU. Measure the resistance at intermediate connector C-31 and TCL/ASC-ECU connector A-32.

CAUTION:
- A digital multimeter should be used.
- The test wiring harness should be used.










1. Disconnect intermediate connector C-31 and TCL/ASC-ECU connector A-32, and measure the resistance between the wiring harness side connector of TCL/ASC-ECU connector A-32 and the male side connector of intermediate connector C-31 (at front wiring harness side).
2. Turn the ignition switch to the "LOCK" (OFF) position.

CAUTION: Disconnect the negative battery terminal.

3. Disconnect the negative battery terminal.






4. Measure the resistance between intermediate connector terminal 11 and TCL/ASC-ECU connector terminal 23.

OK: 2 ohms or less






5. Measure the resistance between intermediate connector terminal 12 and TCL/ASC-ECU connector terminal 14.

OK: 2 ohms or less

CAUTION: Strictly observe the specified wiring harness repair procedure.

Q: Do all the resistances measure 2 ohms or less?

YES : [All the resistances measure 2 ohms or less] Go to Step 14.

NO : [If either of the resistances measures more than 2 ohms or all the resistances measure more than 2 ohms] Repair the wiring harness between intermediate connector C-31 and the TCL/ASC-ECU connector, and then go to Step 8.

STEP 14. Check the TCL/ASC-ECU for open circuit. Measure the resistance at TCL/ASC-ECU connector A-32.

CAUTION: A digital multimeter should be used.






1. Disconnect TCL/ASC-ECU connector A-32, and measure the resistance at the equipment side of TCL/ASC-ECU connector A-32.






2. Measure the resistance between TCL/ASC-ECU connector terminals 1 and 14.

OK: 2 ohms or less






3. Measure the resistance between TCL/ASC-ECU connector terminals 13 and 23.

OK: 2 ohms or less

Q: Do all the resistances measure 2 ohms or less?

YES : [All the resistances measure 2 ohms or less] Go to Step 8.

NO : [If either of the resistances measures more than 2 ohms or all the resistances measure more than 2 ohms] Replace the TCL/ASC-ECU.

STEP 15. Check the CAN bus lines (communication line only) between joint connector (4) and the data link connector. Measure the resistance at joint connector (4) C-101 and data link connector C-121.

CAUTION:
- A digital multimeter should be used.
- The test wiring harness should be used.







1. Disconnect joint connector (4), and measure the resistance between the wiring harness side connector of joint connector (4) and wiring harness side connector of data link connector C-121.
2. Turn the ignition switch to the "LOCK" (OFF) position.

CAUTION: Disconnect the negative battery terminal.

3. Disconnect the negative battery terminal.






4. Measure the resistance between joint connector (4) terminal 5 and data link connector terminal 14.

OK: 2 ohms or less






5. Measure the resistance between joint connector (4) terminal 16 and data link connector terminal 6.

OK: 2 ohms or less

CAUTION: Strictly observe the specified wiring harness repair procedure.

Q: Do all the resistances measure 2 ohms or less?

YES [all the resistances measure 2 ohms or less: When any repair done] : Retest the system.

YES [all the resistances measure 2 ohms or less: When no repair done] : Diagnose CAN bus lines thoroughly by referring to Diagnostic Item 9 Diagnostic Item 9 [Vehicles without multi-center display (middle-grade type)] or Diagnostic Item 10 Diagnostic Item 10 [Vehicles with multi-center display (middle-grade type)].

NO [if either of the resistances measures more than 2 ohms or all the resistances measure more than 2 ohms] : Repair the wiring harness wires between joint connector (4) and the data link connector.