Operation CHARM: Car repair manuals for everyone.
Manuals through 2025 now available!

Our trusted friends have launched a new website named LEMON, which has newer manuals. It also contains all the CHARM manuals.

LEMON is the spiritual successor to CHARM, I recommend you try it!

Link: lemon-manuals.la or lemon-manuals.org.ua

(Some people have issue connecting. LEMON is investigating. For now, use Firefox or change your DNS server)

Or, hide this message: temporarily or permanently

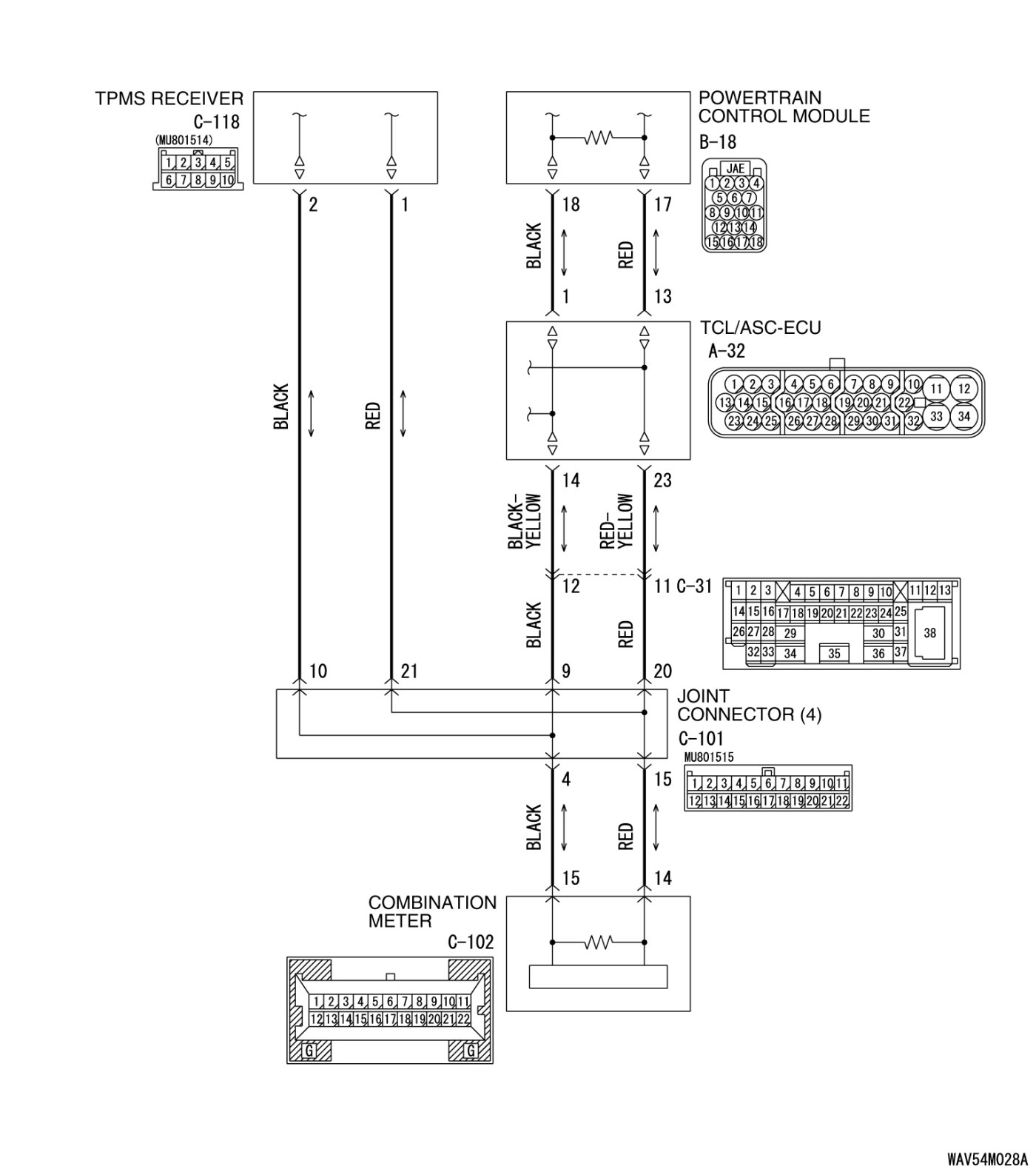
Diagnostics Item 19




DIAGNOSTIC ITEM 19: Diagnose the lines between CAN main bus line and the TPMS receiver.

CAUTION:
When servicing a CAN bus line, ground yourself by touching a metal object such as an unpainted water pipe. If you fail to do so, a component connected to the CAN bus line may be damaged.














TROUBLE JUDGMENT

If the M.U.T.-III cannot received signals from TPMS receiver, CAN bus line connector(s) are broken or an open circuit has occurred.

COMMENTS ON TROUBLE SYMPTOM

The wiring harness wire or connectors may have loose, corroded, or damage terminals, or terminals pushed back in the connector, or the TPMS receiver may be defective.

TROUBLESHOOTING HINTS

- The wiring harness or connectors may have loose, corroded, or damage terminals, or terminals pushed back in the connector
- The TPMS receiver may be defective

DIAGNOSIS

Required Special Tool:

- MB991223: Harness Set

STEP 1. Check joint connector (4) C-101 and TPMS receiver connector C-118 for loose, corroded or damaged terminals, or terminals pushed back in the connector.









CAUTION:
The strand end of the twisted wire should be within 10 cm (4 inches) from the connector.
For details refer to Precautions When CAN Bus Line(s) are Repaired.





Check the joint connector at the wiring harness side for loose, corroded or damaged terminals, or terminals pushed back in the connector, and also check the short pin behind the connector for corrosion, deformation and delamination.

Q. Are joint connector (4) C-101 and TPMS receiver connector C-118 in good condition?

YES Go to Step 2.

NO Repair the damaged parts. Replace the joint connector as necessary.

STEP 2. Check the CAN bus lines between joint connector (4) and the TPMS receiver. Measure the resistance between joint connector (4) C-101 and TPMS receiver connector C-118.

CAUTION:
A digital multimeter should be used. For details refer to Precautions When CAN Bus Line(s) are Repaired.

CAUTION:
The test wiring harness should be used. For details refer to Precautions When CAN Bus Line(s) are Repaired.









(1)Disconnect joint connector (4) C-101 and TPMS receiver connector C-118, and measure the resistances at the wiring harness sides of joint connector (4) C-101 and TPMS receiver connector C-118.
(2)Turn the ignition switch to the "LOCK" (OFF) position.
(3)
CAUTION:
Disconnect the negative battery terminal. For details refer to Precautions When CAN Bus Line(s) are Repaired.

Disconnect the negative battery terminal.





(4)Measure the resistance between joint connector (4) terminal 10 and TPMS receiver connector terminal 2.
OK: 2 ohms or less






(5)Measure the resistance between joint connector (4) terminal 21 and TPMS receiver connector terminal 1.
OK: 2 ohms or less

CAUTION:
Strictly observe the specified wiring harness repair procedure.
For details refer to Precautions on How to Repair the CAN Bus Line(s).

Q. Do all the resistances measure 2 ohms or less?

YES If all the resistances measure 2 ohms or less, power supply to the TPMS receiver may be suspected. Diagnose the SWS. Inspection Procedure A-3.

NO If either of the resistances measures more than 2 ohms or all the resistances measure more than 2 ohms, repair the wiring harness between joint connector (4) and the TPMS receiver connector.