Operation CHARM: Car repair manuals for everyone.
Manuals through 2025 now available!

Our trusted friends have launched a new website named LEMON, which has newer manuals. It also contains all the CHARM manuals.

LEMON is the spiritual successor to CHARM, I recommend you try it!

Link: lemon-manuals.la or lemon-manuals.org.ua

(Some people have issue connecting. LEMON is investigating. For now, use Firefox or change your DNS server)

Or, hide this message: temporarily or permanently

Inspection Procedure 25

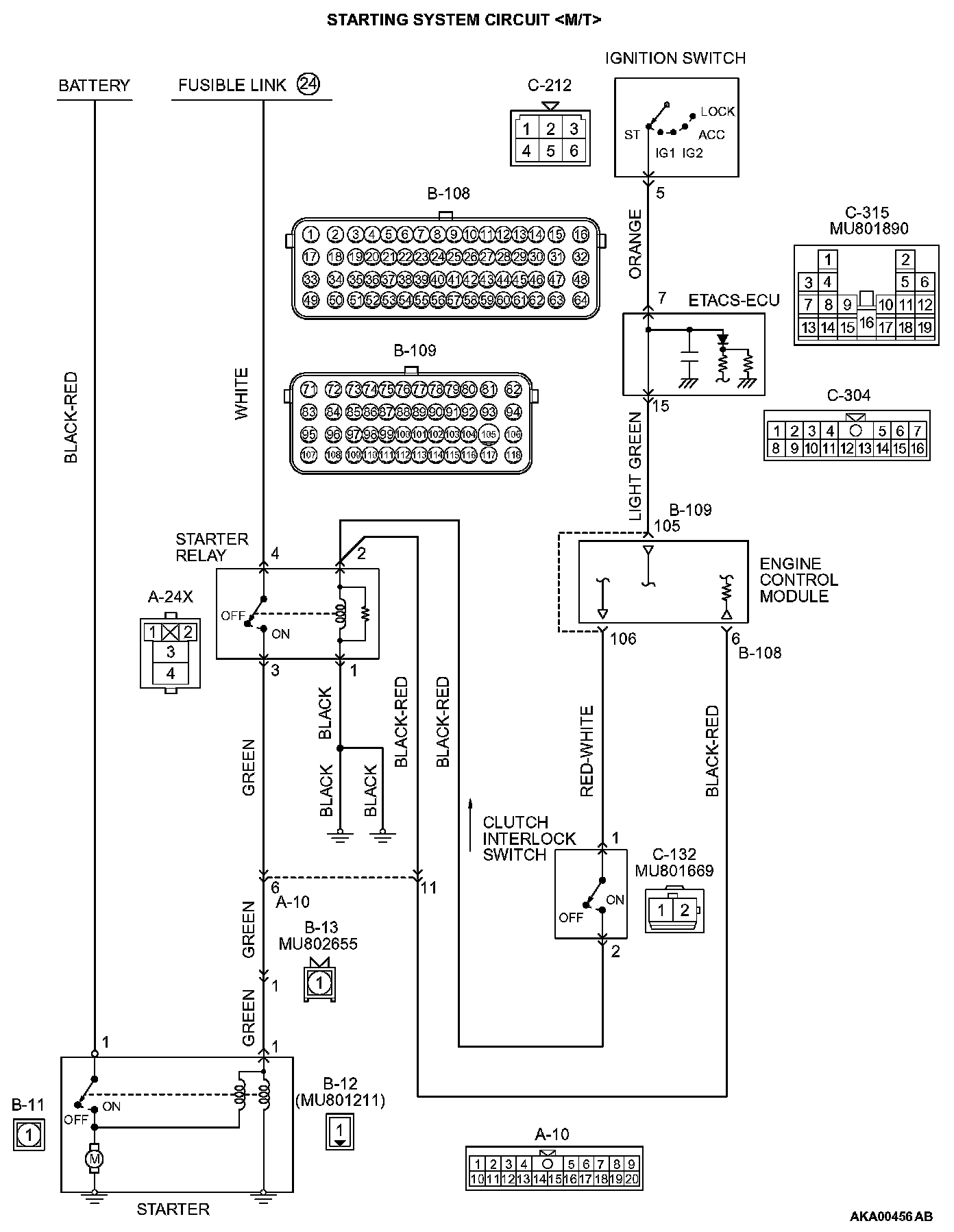
Inspection Procedure 25: Ignition Switch-ST System And Starter Relay System [M/T]










CIRCUIT OPERATION
- If the clutch interlock switch is ON (when the clutch pedal is depressed.) and the ignition switch is turned to "START" position, battery positive voltage is supplied to starter relay coil. With this, the starter relay turns "ON" the battery positive voltage is supplied to the starter motor (terminal No. 1) from the battery.

COMMENT
- Faulty starting system and the related circuit are suspected to be the causes.

TROUBLESHOOTING HINTS (The most likely causes for this case:)
- Battery failed.
- Starter relay failed.
- Starter motor failed.
- Open or shorted starting system circuit, harness damage or connector damage.
- Clutch interlock switch failed.
- ECM failed.

DIAGNOSIS

Required Special Tool:
- MB991958: Scan Tool (M.U.T.-III Sub Assembly)
- MB991824: V.C.I.
- MB991827: USB Cable
- MB991910: Main Harness A

STEP 1. Using scan tool MB991958, check data list item 79: Cranking Signal.







CAUTION: To prevent damage to scan tool MB991958, always turn the ignition switch to the "LOCK" (OFF) position before connecting or disconnecting scan tool MB991958.

1. Connect scan tool MB991958 to the data link connector.
2. Turn the ignition switch to the "ON" position.
3. Set scan tool MB991958 to the data reading mode for item 79, Cranking Signal.
- When the engine is stopped, "OFF" should be displayed.
- When the engine is cranked, "ON" should be displayed.

4. Turn the ignition switch to the "LOCK" (OFF) position.

Q: Is the operating properly?

YES : Go to Step 12.

NO : Go to Step 2.

STEP 2. Check harness connector C-304, C-315 at ETACS-ECU for damage.

Q: Are the harness connectors in good condition?

YES : Go to Step 3.

NO : Repair or replace them. Then confirm that the malfunction symptom is eliminated.

STEP 3. Measure the ignition switch-ST signal voltage at ETACS-ECU harness side connector C-315.

1. Disconnect the connector C-315 and measure at the harness side.
2. Turn the ignition switch to the "START" position.







3. Measure the voltage between terminal No. 7 and ground.
- Voltage should be battery positive voltage.

4. Turn the ignition switch to the "LOCK" (OFF) position.

Q: Is battery positive voltage (approximately 12 volts) present?

YES : Go to Step 6.

NO : Go to Step 4.

STEP 4. Check harness connector C-212 at ignition switch for damage.

Q: Is the harness connector in good condition?

YES : Go to Step 5.

NO : Repair or replace it. Then confirm that the malfunction symptom is eliminated.

STEP 5. Check the ignition switch.
Refer to ignition switch - Inspection - Ignition Switch Continuity Check. Ignition Switch Inspection

Q: Are there any abnormalities?

YES : Replace the ignition switch. Then confirm that the malfunction symptom is eliminated.

NO : Repair harness wire between ignition switch connector C-212 (terminal No. 5) and ETACS-ECU connector C-315 (terminal No. 7) because of open circuit or short circuit to ground. Then confirm that the malfunction symptom is eliminated.

STEP 6. Check harness connector C-212 at ignition switch for damage.

Q: Is the harness connector in good condition?

YES : Go to Step 7.

NO : Repair or replace it. Then confirm that the malfunction symptom is eliminated.

STEP 7. Check for harness damage between ignition switch connector C-212 (terminal No. 5) and ETACS-ECU connector C-315 (terminal No. 7).

Q: Is the harness wire in good condition?

YES : Go to Step 8.

NO : Repair it. Then confirm that the malfunction symptom is eliminated.

STEP 8. Check the continuity at ETACS-ECU side connector C-304 and C-315.







1. Disconnect the connector C-304, C-315 and measure at the ETACS-ECU side.
2. Check for the continuity between connector C-304 (terminal No. 15) and connector C-315 (terminal No. 7).
- Continuity.

Q: Does continuity exist?

YES : Go to Step 9.

NO : Replace the ETACS-ECU. Then confirm that the malfunction symptom is eliminated.

STEP 9. Check harness connector B-109 at ECM for damage.

Q: Is the harness connector in good condition?

YES : Go to Step 10.

NO : Repair or replace it. Then confirm that the malfunction symptom is eliminated.

STEP 10. Check for open circuit, short circuit to ground and harness damage between ETACS-ECU connector C-304 (terminal No. 15) and ECM connector B-109 (terminal No. 105).

Q: Is the harness wire in good condition?

YES : Go to Step 11.

NO : Repair it. Then confirm that the malfunction symptom is eliminated.

STEP 11. Using scan tool MB991958, check data list item 79: Cranking Signal.

1. Turn the ignition switch to the "ON" position.
2. Set scan tool MB991958 to the data reading mode for item 79, Cranking Signal.
- When the engine is stopped, "OFF" should be displayed.
- When the engine is cranked, "ON" should be displayed.

3. Turn the ignition switch to the "LOCK" (OFF) position.

Q: Is the operating properly?

YES : It can be assumed that this malfunction is intermittent. Refer to How to Use Troubleshooting/Inspection Service Points - How to Cope with Intermittent Malfunctions. Troubleshooting Contents

NO : Replace the ECM. Then confirm that the malfunction symptom is eliminated.

STEP 12. Check harness connector A-24X at starter relay for damage.

Q: Is the harness connector in good condition?

YES : Go to Step 13.

NO : Repair or replace it. Then confirm that the malfunction symptom is eliminated.

STEP 13. Check the starter relay.

1. Remove the starter relay.







2. Check for continuity between the starter relay terminals No. 1 and No. 2.
- There should be continuity.







3. Use jumper wires to connect starter relay terminal No. 2 to the positive battery terminal and terminal No. 1 to the negative battery terminal.
4. Check for continuity between the starter relay terminals No. 3 and No. 4 while connecting and disconnecting the jumper wire at the negative battery terminal.
- Continuity (2 ohms or less). [Negative battery terminal connected]
- Should be open loop. [Negative battery terminal disconnected]

5. Install the starter relay.

Q: Is the measured resistance normal?

YES : Go to Step 14.

NO : Replace the starter relay. Then confirm that the malfunction symptom is eliminated.

STEP 14. Check the continuity at starter relay harness side connector A-24X.

1. Disconnect the connector A-24X and measure at the harness side.







2. Check for the continuity between terminal No. 1 and ground.
- Continuity (2 ohms or less).

Q: Does continuity exist?

YES : Go to Step 15.

NO : Repair harness wire between starter relay connector A-24X (terminal No. 1) and ground because of open circuit or harness damage. Then confirm that the malfunction symptom is eliminated.

STEP 15. Measure the power supply voltage at starter relay harness side connector A-24X.

1. Disconnect the connector A-24X and measure at the harness side.
2. Turn the ignition switch to the "START" position.







3. Measure the voltage between terminal No. 2 and ground.
- Voltage should be battery positive voltage.

4. Turn the ignition switch to the "LOCK" (OFF) position.

Q: Is battery positive voltage (approximately 12 volts) present?

YES : Go to Step 24.

NO : Go to Step 16.

STEP 16. Check harness connector C-132 at clutch interlock switch for damage.

Q: Is the harness connector in good condition?

YES : Go to Step 17.

NO : Repair or replace it. Then confirm that the malfunction symptom is eliminated.

STEP 17. Check the clutch interlock switch.
Refer to Clutch Pedal and Master Cylinder - Inspection. Testing and Inspection

Q: Are there any abnormalities?

YES : Replace the clutch interlock switch. Then confirm that the malfunction symptom is eliminated.

NO : Go to Step 18.

STEP 18. Measure the power supply voltage at clutch interlock switch harness side connector C-132.

1. Disconnect the connector C-132 and measure at the harness side.
2. Turn the ignition switch to the "START" position.







3. Measure the voltage between terminal No. 1 and ground.
- Voltage should be battery positive voltage.

4. Turn the ignition switch to the "LOCK" (OFF) position.

Q: Is battery positive voltage (approximately 12 volts) present?

YES : Go to Step 22.

NO : Go to Step 19.

STEP 19. Check harness connector B-109 at ECM for damage.

Q: Is the harness connector in good condition?

YES : Go to Step 20.

NO : Repair or replace it. Then confirm that the malfunction symptom is eliminated.

STEP 20. Check for open circuit and short circuit to ground between ECM connector B-109 (terminal No. 106) and clutch interlock switch connector C-132 (terminal No. 1).

Q: Is the harness wire in good condition?

YES : Go to Step 21.

NO : Repair it. Then confirm that the malfunction symptom is eliminated.

STEP 21. Using scan tool MB991958, check data list item 102: Starter Relay.

1. Turn the ignition switch to the "ON" position.
2. Set scan tool MB991958 to the data reading mode for item 102, Starter Relay.
- When the engine is stopped, "OFF" should be displayed.
- When the engine is cranked, "ON" should be displayed.

3. Turn the ignition switch to the "LOCK" (OFF) position.

Q: Is the operating properly?

YES : It can be assumed that this malfunction is intermittent. Refer to How to Use Troubleshooting/Inspection Service Points - How to Cope with Intermittent Malfunctions. Troubleshooting Contents

NO : Replace the ECM. Then confirm that the malfunction symptom is eliminated.

STEP 22. Check for open circuit and short circuit to ground between clutch interlock switch connector C-132 (terminal No. 2) and starter relay connector A-24X (terminal No. 2).

Q: Is the harness wire in good condition?

YES : Go to Step 23.

NO : Repair it. Then confirm that the malfunction symptom is eliminated.

STEP 23. Check harness connector B-108 at ECM for damage.

Q: Is the harness connector in good condition?

YES : Check harness connector A-10 at intermediate connector for damage, and repair or replace as required. If intermediate connector is in good condition, repair harness wire between ECM connector B-108 (terminal No. 6) and starter relay connector A-24X (terminal No. 2) because of short circuit to ground. Then confirm that the malfunction symptom is eliminated.

NO : Repair or replace it. Then confirm that the malfunction symptom is eliminated.

STEP 24. Check harness connector B-12 at starter for damage.

Q: Is the harness connector in good condition?

YES : Go to Step 25.

NO : Repair or replace it. Then confirm that the malfunction symptom is eliminated.

STEP 25. Measure the power supply voltage at starter harness side connector B-12.

1. Disconnect the connector B-12 and measure at the harness side.
2. Turn the ignition switch to the "START" position.







3. Measure the voltage between terminal No. 1 and ground.
- Voltage should be battery positive voltage.

4. Turn the ignition switch to the "LOCK" (OFF) position.

Q: Is battery positive voltage (approximately 12 volts) present?

YES : Go to Step 30.

NO : Go to Step 26.

STEP 26. Measure the power supply voltage at starter relay harness side connector A-24X.

1. Disconnect the connector A-24X and measure at the harness side.







2. Measure the voltage between terminal No. 4 and ground.
- Voltage should be battery positive voltage.

Q: Is battery positive voltage (approximately 12 volts) present?

YES : Go to Step 27.

NO : Repair harness wire between fusible link (24) and starter relay connector A-24X (terminal No. 4) because of open circuit or short circuit to ground. Then confirm that the malfunction symptom is eliminated.

STEP 27. Check for open circuit and short circuit to ground between starter relay connector A-24X (terminal No. 3) and starter connector B-12 (terminal No. 1)

NOTE: Check harness after checking intermediate connectors A-10 and B-13. If intermediate connectors are damaged, repair or replace them. Then confirm that the malfunction symptom is eliminated.

Q: Is the harness wire in good condition?

YES : Go to Step 28.

NO : Repair it. Then confirm that the malfunction symptom is eliminated.

STEP 28. Check harness connector B-109 at ECM and harness connector C-132 at clutch interlock switch for damage.

Q: Are the harness connectors in good condition?

YES : Go to Step 29.

NO : Repair or replace them. Then confirm that the malfunction symptom is eliminated.

STEP 29. Check for harness damage between ECM connector B-109 (terminal No. 106) and clutch interlock switch connector C-132 (terminal No. 1).

Q: Is the harness wire in good condition?

YES : Repair harness wire between clutch interlock switch connector C-132 (terminal No. 2) and starter relay connector A-24X (terminal No. 2) because of harness damage. Then confirm that the malfunction symptom is eliminated.

NO : Repair it. Then confirm that the malfunction symptom is eliminated.

STEP 30. Check for harness damage between starter relay connector A-24X (terminal No. 3) and starter connector B-12 (terminal No. 1)

NOTE: Check harness after checking intermediate connectors A-10 and B-13. If intermediate connectors are damaged, repair or replace them. Then confirm that the malfunction symptom is eliminated.

Q: Is the harness wire in good condition?

YES : Go to Step 31.

NO : Repair it. Then confirm that the malfunction symptom is eliminated.

STEP 31. Check for harness damage between fusible link (24) and starter relay connector A-24X (terminal No. 4)

Q: Is the harness wire in good condition?

YES : Go to Step 32.

NO : Repair it. Then confirm that the malfunction symptom is eliminated.

STEP 32. Check harness connector B-11 at starter for damage.

Q: Is the harness connector in good condition?

YES : Go to Step 33.

NO : Repair or replace it. Then confirm that the malfunction symptom is eliminated.

STEP 33. Check for open circuit, short circuit to ground and harness damage between battery and starter connector B-11 (terminal No. 1)

Q: Is the harness wire in good condition?

YES : Replace the starter. Then confirm that the malfunction symptom is eliminated.

NO : Repair it. Then confirm that the malfunction symptom is eliminated.