Operation CHARM: Car repair manuals for everyone.
Manuals through 2025 now available!

Our trusted friends have launched a new website named LEMON, which has newer manuals. It also contains all the CHARM manuals.

LEMON is the spiritual successor to CHARM, I recommend you try it!

Link: lemon-manuals.la or lemon-manuals.org.ua

(Some people have issue connecting. LEMON is investigating. For now, use Firefox or change your DNS server)

Or, hide this message: temporarily or permanently

A/C - Control Head Replacement

File in Section: 01 - HVAC

Bulletin No.: 03-01-39-014

Issue Date: November, 2003

TECHNICAL INFORMATION BULLETIN

Subject:
Service Information on Replacing 2002 L-Series Auto Climate Control (ACC) Control Head

Models Affected:
2002 L-Series with Auto Climate Control (C68)

Attention:
Parts Manager and Technician

Purpose:





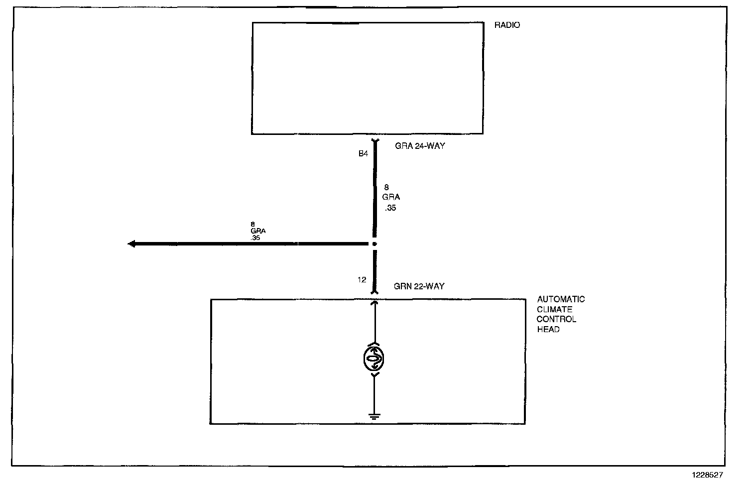
This bulletin provides information on replacing the 2002 Auto Climate Control (ACC) control head. The 2003 ACC control head has been released to service 2002 vehicles. When installing the new ACC control head, P/N 22696058, a dimming circuit must be installed for proper lighting control. The following procedure provides instructions for installing the new ACC control head.

Procedure:

Notice:
This procedure should only be used when back servicing a 2002 vehicle with a 2003 ACC control head. If this procedure is performed using the current 2002 ACC control head. the control head will be damaged.

1. Remove the HVAC control head using the L-Series "HVAC Control Head Removal" procedure located in the 2002-2003 L-Series HVAC Service Manual.

2. Using Terminal Replacement Pack P/N 22705564 tightly seat the terminal in cavity 12 of the GRN 22-way Automatic Climate Control (ACC) wiring connector.

3. Locate circuit 8 (GRA 35 wire) in cavity B4 at the GRA 24-way radio connector.

4. Cut circuit 8 (GRA 35 wire) approximately 2 in (50 mm) back from the connector.

5. Using proper wire splicing procedures in the Wiring Section of the Body Electrical Diagnostics Service Manual, splice the new circuit wire into circuit 8 with a blue splice connector, P/N 12089190.

6. Install the new HVAC control head using the L-Series HVAC Control Head Installation" procedure located in the 2002-2003 L-Series HVAC Service Manual.

7. Verify proper installation by turning vehicle headlamps on and adjusting the dimmer control switch up and down to observe the ACC control head display vary in brightness.





Parts Information:

Claim Information:

To receive credit for this repair during the warranty coverage period, submit a claim through the Saturn Dealer System for D0362 (Control Assembly, A/C Replace). An Add Time is included to install the new wire for the dimmer circuit.





Disclaimer