Operation CHARM
: Car repair manuals for everyone.
Home
>>
Suzuki
>>
2009
>>
Equator 2WD L4-2.5L
>>
Repair and Diagnosis
>>
Diagrams
>>
Electrical Diagrams
>>
Antitheft and Alarm Systems
>>
Vehicle Security System [Crew Cab]
Manuals through 2025 now available!
Our trusted friends have launched a new website named LEMON, which has newer manuals. It also contains all the CHARM manuals.
LEMON is the spiritual successor to CHARM, I recommend you try it!
Link:
lemon-manuals.la
or
lemon-manuals.org.ua
(Some people have issue connecting. LEMON is investigating. For now, use Firefox or change your DNS server)
Or, hide this message:
temporarily
or
permanently
Vehicle Security System [Crew Cab]
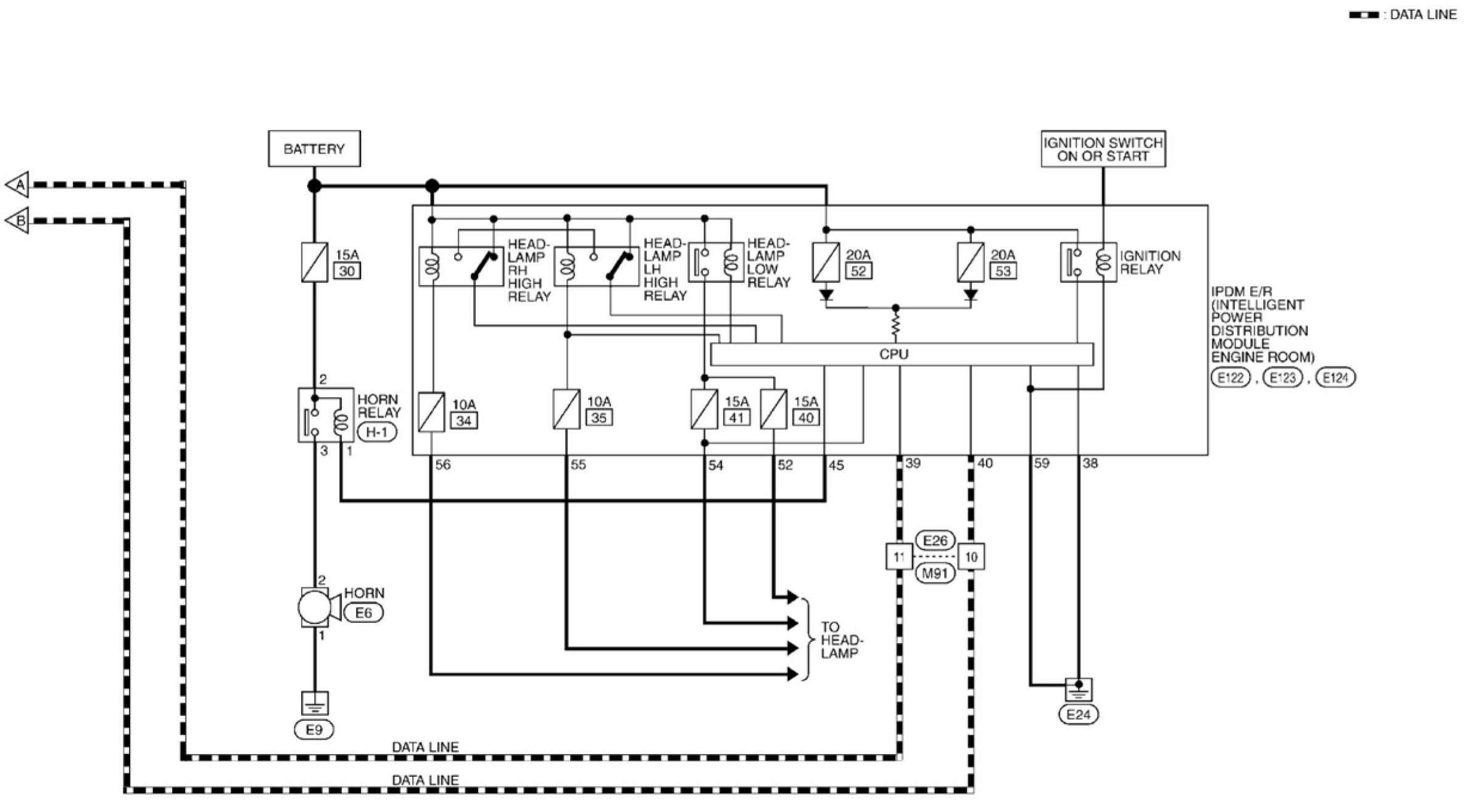
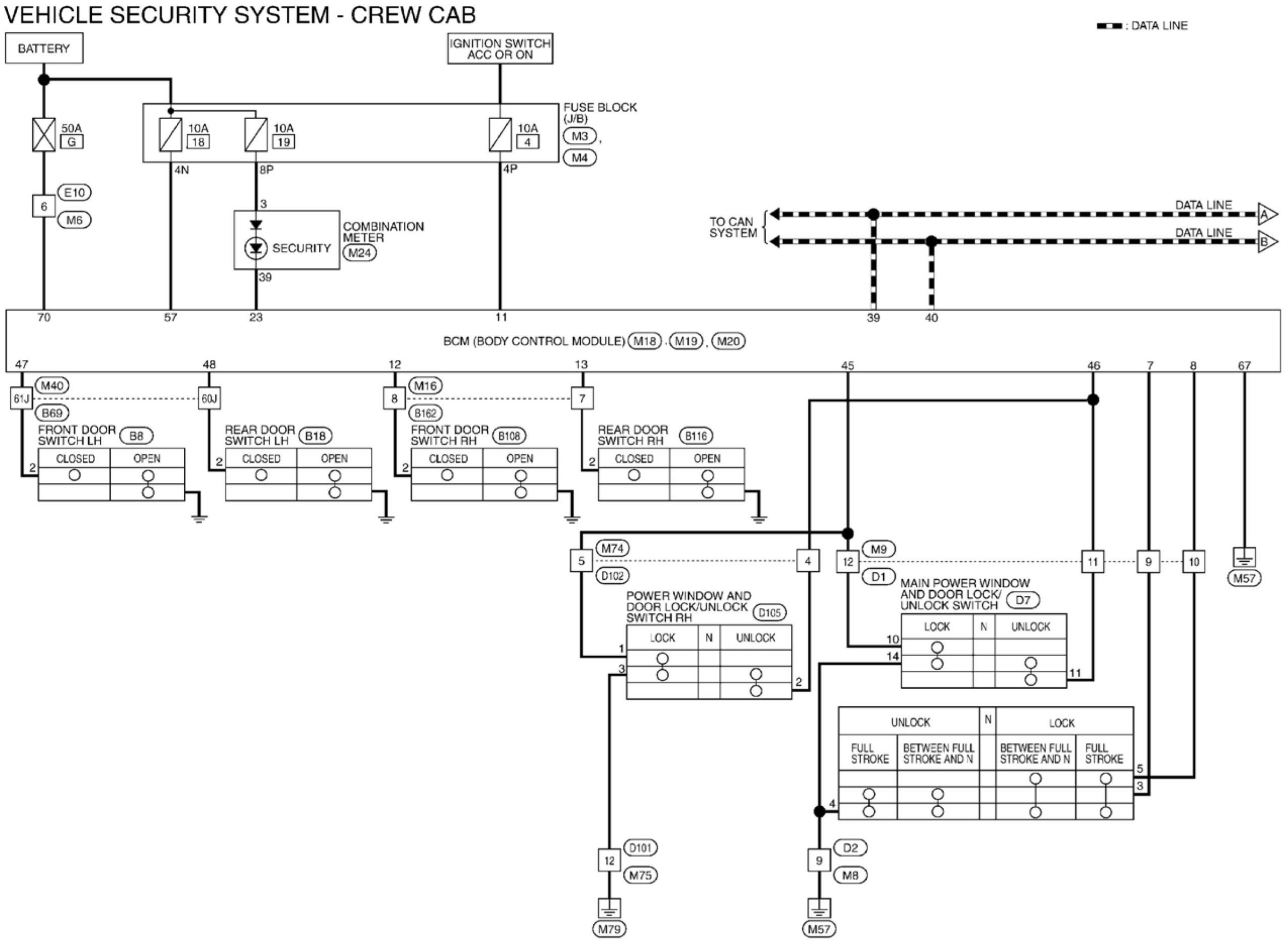
Vehicle Security System: Wiring Diagram [Crew Cab]
Vehicle Security System - Crew Cab (Part 1):
Vehicle Security System - Crew Cab (Part 2):
Vehicle Security System Connectors - Crew Cab
Vehicle Security System Connectors - Crew Cab (Part 1):
Vehicle Security System Connectors - Crew Cab (Part 2):
Vehicle Security System Connectors - Crew Cab (Part 3):
Vehicle Security System Connectors - Crew Cab (Part 4):
Vehicle Security System Connectors - Crew Cab (Part 5):
Vehicle Security System Connectors - Crew Cab (Part 6):