Operation CHARM: Car repair manuals for everyone.
Manuals through 2025 now available!

Our trusted friends have launched a new website named LEMON, which has newer manuals. It also contains all the CHARM manuals.

LEMON is the spiritual successor to CHARM, I recommend you try it!

Link: lemon-manuals.la or lemon-manuals.org.ua

(Some people have issue connecting. LEMON is investigating. For now, use Firefox or change your DNS server)

Or, hide this message: temporarily or permanently

Transmission Control Systems: Diagrams

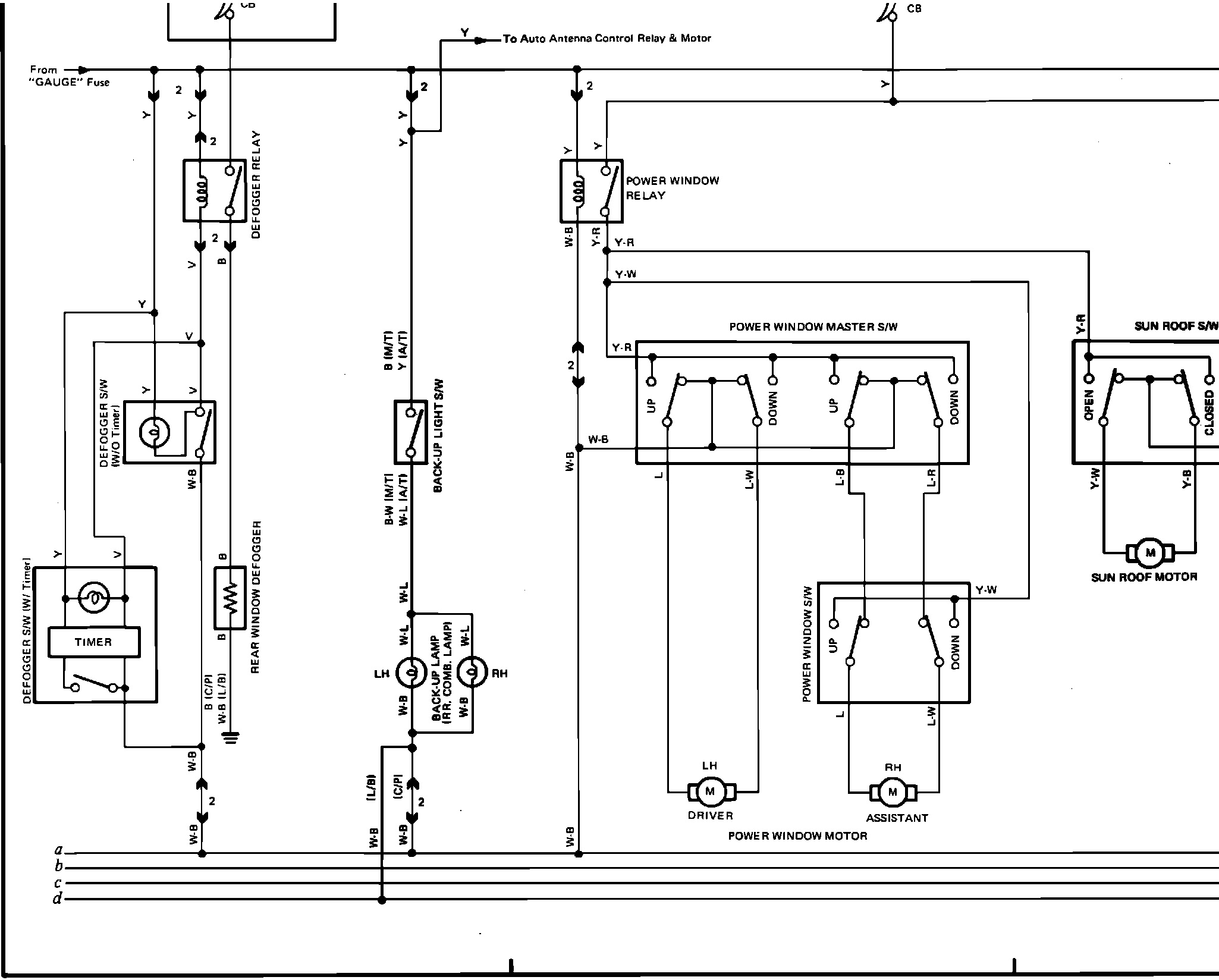
��,v�,@-�"-2-"<-�H-Fig. 12b Rear Defogger, Back-Up Lights, Power Windows, Sun Roof, Power Door Locks, Overdrive, Cruise Control, Stop Light, Turn Signal, Hazard, and Horn Wiring Diagram: