Operation CHARM: Car repair manuals for everyone.
Manuals through 2025 now available!

Our trusted friends have launched a new website named LEMON, which has newer manuals. It also contains all the CHARM manuals.

LEMON is the spiritual successor to CHARM, I recommend you try it!

Link: lemon-manuals.la or lemon-manuals.org.ua

(Some people have issue connecting. LEMON is investigating. For now, use Firefox or change your DNS server)

Or, hide this message: temporarily or permanently

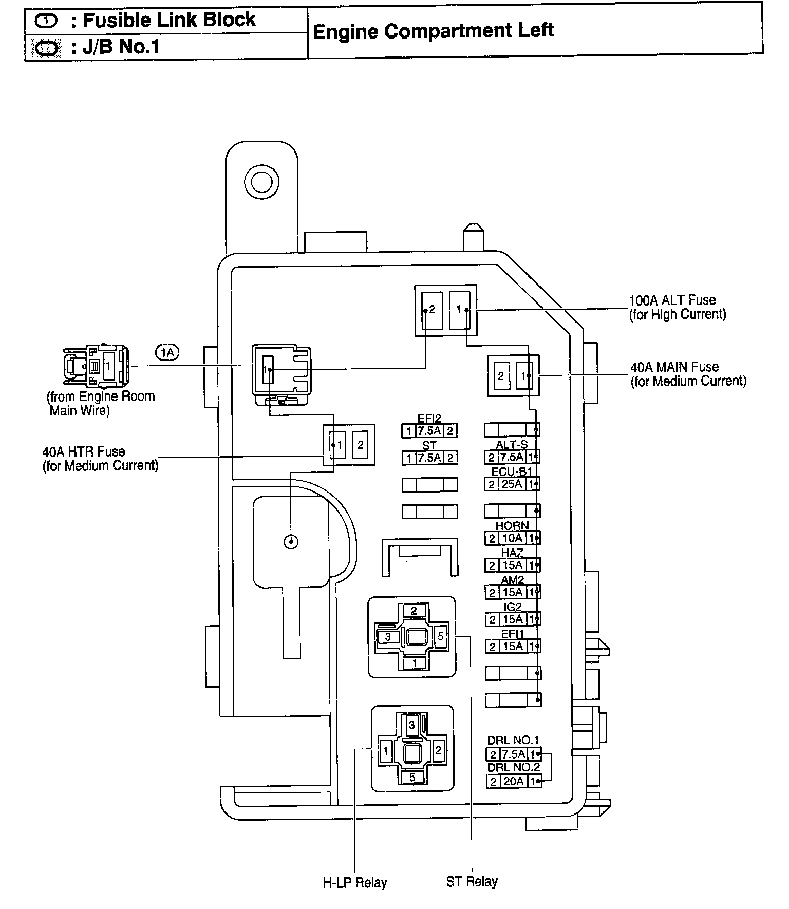
Connector Locations




JUNCTION BLOCK AND WIRE HARNESS CONNECTOR

Fusible Link Block/J/B No. 1:




FIG 22

R/B No. 3 - J/B No. 3:




FIG 24

R/B No. 4 - J/B No. 4:




FIG 25