Operation CHARM: Car repair manuals for everyone.
Manuals through 2025 now available!

Our trusted friends have launched a new website named LEMON, which has newer manuals. It also contains all the CHARM manuals.

LEMON is the spiritual successor to CHARM, I recommend you try it!

Link: lemon-manuals.la or lemon-manuals.org.ua

(Some people have issue connecting. LEMON is investigating. For now, use Firefox or change your DNS server)

Or, hide this message: temporarily or permanently

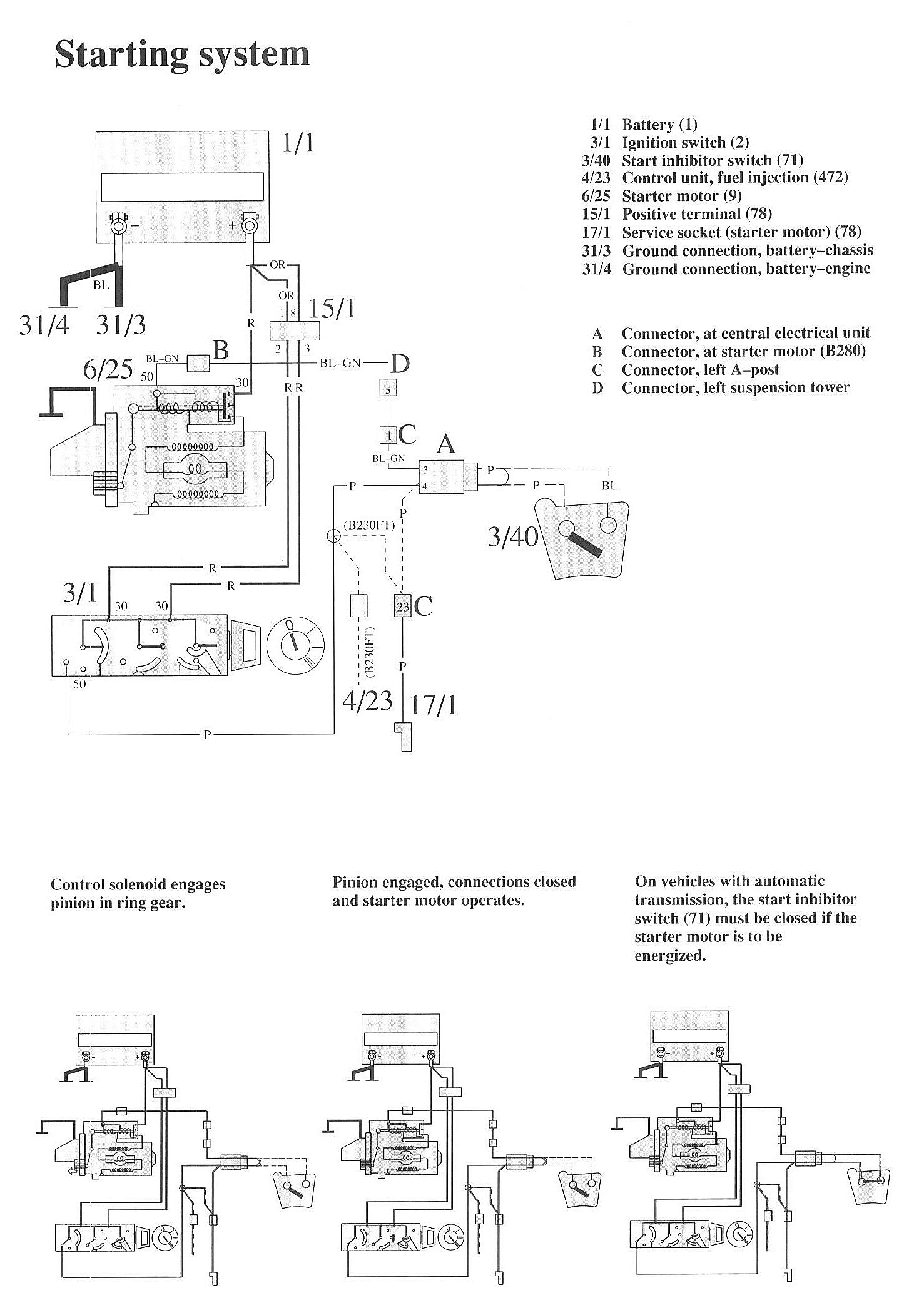
Starting System: Locations

Component / Connector Views:




Wiring Diagrams:




LEGEND
1/1 Battery
3/1 Ignition switch
3/40 Start inhibitor switch
4/23 Control unit, fuel injection
6/25 Starter motor
15/1 Positive terminal
17/1 Service socket (starter motor)
31/3 Ground connection, battery-chassis
31/4 Ground connection, battery-engine

A Connector, at central electrical unit
B Connector, at starter motor (B280)
C Connector, left A-post
D Connector, left suspension tower