Operation CHARM: Car repair manuals for everyone.
Manuals through 2025 now available!

Our trusted friends have launched a new website named LEMON, which has newer manuals. It also contains all the CHARM manuals.

LEMON is the spiritual successor to CHARM, I recommend you try it!

Link: lemon-manuals.la or lemon-manuals.org.ua

(Some people have issue connecting. LEMON is investigating. For now, use Firefox or change your DNS server)

Or, hide this message: temporarily or permanently

General Module

Diagram 59-1:






Central Junction Box
Central Timer Module
Data Link Connector
Fuse 6
Fuse 8
Fuse 15
Fuse 20
Generic Electronic Module
Ignition Key Warning Switch
Restraints Control Module


Diagram 59-2:






Brake/Run Relay Control
Central Junction Box
Central Timer Module
Door Ajar Indicator
Door Ajar Indicator Control
Door Ajar Input
Fasten Safety Belt Indicator
Fasten Safety Belt Indicator Control
Fuse 18
Generic Electronic Module
Instrument Cluster
Interval Delay/Wash Input
Left Door Ajar Input
Left Front Door Ajar Switch
Main Light Switch
Park/Headlamps On Input
Right Front Door Ajar Switch
Safety Belt Switch
Washer Pump Control
Windshield Wiper Mode Select Input
Wiper High/Low Relay Control
Wiper Park Sense


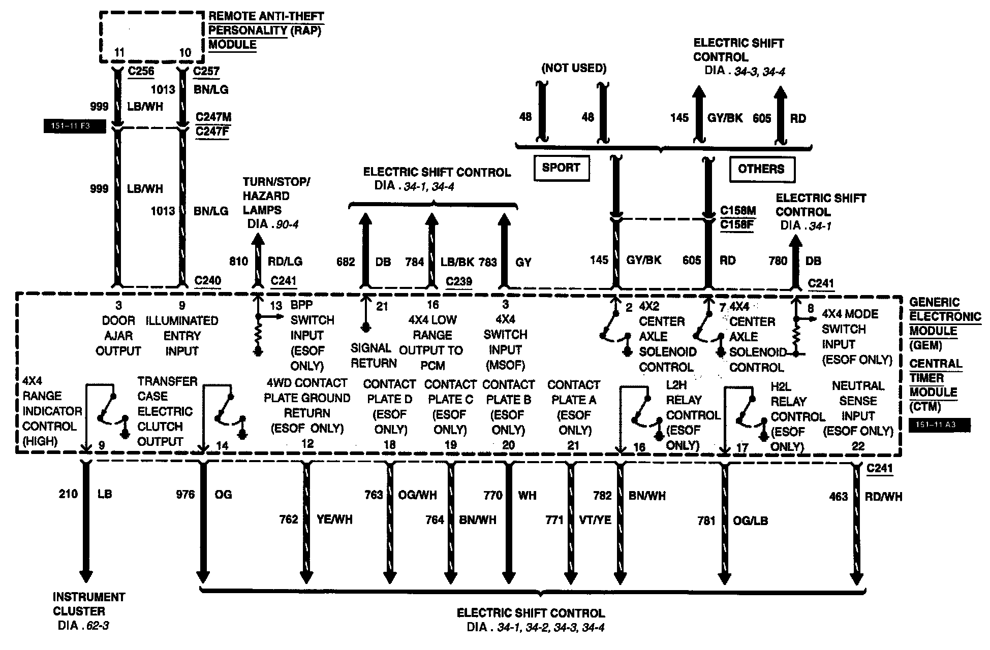
Diagram 59-3:






Accessory Delay Relay
Battery Junction Box
Battery Saver Relay
Central Junction Box
Fuse 103
Fuse 110
Generic Electronic Module
Interior Lamp Relay
One Touch Down Relay


Diagram 59-4:





4X2 Center Axle Solenoid Control
Central Timer Module
Door Ajar Output
Generic Electronic Module
H2L Relay Control
Illuminated Entry Input
L2H Relay Control
Neutral Sense Input
Remote Anti-Theft Personality Module