Operation CHARM: Car repair manuals for everyone.
Manuals through 2025 now available!

Our trusted friends have launched a new website named LEMON, which has newer manuals. It also contains all the CHARM manuals.

LEMON is the spiritual successor to CHARM, I recommend you try it!

Link: lemon-manuals.la or lemon-manuals.org.ua

(Some people have issue connecting. LEMON is investigating. For now, use Firefox or change your DNS server)

Or, hide this message: temporarily or permanently

Frame Members




Frame Members









Front Frame Rail

NOTE: Cut lines shown in illustration are approximate, refer to the following procedure for specific cut locations.











WARNING: Invisible ultraviolet and infrared rays emitted in welding can injure unprotected eyes and skin. Always use protection such as a welder's helmet with dark-colored filter lenses of the correct density. Electric welding will produce intense radiation, therefore, filter plate lenses of the deepest shade providing adequate visibility are recommended. It is strongly recommended that persons working in the weld area wear flash safety goggles. Also wear protective clothing. Failure to follow these instructions may result in serious personal injury.

WARNING: Frame rail crush zones absorb crash energy during a collision and must be replaced if damaged. Straighten damaged frame rails to correct frame dimensions prior to frame member sectioning. Failure to follow these instructions may adversely affect frame rail performance and may result in serious personal injury to vehicle occupant(s).

WARNING: Never install used or reconditioned parts (as specified below) from pre-owned, salvaged or damaged vehicles. The use of such parts could lead to serious injury.

Never use non-Ford parts or accessories for completing repairs.

Ford Motor Company does not approve or recognize body and structural repair procedures, tools, parts or anything but new genuine Ford equipment. Ford cannot attest to the safety, quality, durability or legality of non-Ford parts or accessories. Use of such parts could lead to serious personal injury as they may contain damage which is not visible.

Ford does not approve use of the following:
- Salvaged or used parts
- Major body clips or assemblies from salvage vehicles
- Aftermarket structural or body components
- Salvaged or reconditioned wheels
- Used supplemental restraint system (SRS) components
- air bags
- restraint system modules
- safety belts, buckles or retractors
- crash sensors

Returning a vehicle to pre-accident condition can only be assured if repair procedures are carried out by skilled technicians using new genuine Ford parts and Ford-approved methods. Structural component repair procedures approved by Ford, using genuine Ford parts, have been validated by Ford Motor Company engineers.

Ford Motor Company does not endorse, cannot attest to, and makes no representations regarding structural repairs (frames, rails, aprons and body panels) carried out using non-genuine Ford Motor Company parts or non-Ford-approved methods. In particular, Ford makes no representations that the vehicle will meet any crash safety or anti-corrosion performance requirement. Such parts and methods have not been tested by Ford, and may not meet Ford's requirements for safety, performance, strength, quality, durability and corrosion protection.

Ford Motor Company bears no responsibility or liability of any kind if repairs are performed using alternative structural component repair procedures and/or parts.


NOTICE: The front frame rail kit and No. 6 crossmember are the only serviceable components of the frame assembly. Follow the manufacturer's prescribed procedure included with the service replacement kit.

NOTE: Corrosion protection needs to be restored whenever it is necessary to sand or grind through painted surfaces or E-coat, or when bare metal repairs are made. For additional information, refer to Restoring Corrosion Protection Following Repair .

NOTE: Observe prescribed welding procedures when carrying out repairs to the frame assembly. For additional information, refer to Welding Precautions - Steel .

1. NOTE: To make sure of correct fit and alignment of replacement components, the vehicle should be rough straightened to restore it to pre-accident dimensions before removal of structural or welded components.

Position the vehicle on a frame rack following the manufacturer's recommendations. Measure the vehicle to determine body and frame alignment. For additional information, refer to Body for dimensional information.

2. Remove the front bumper.

3. Unbolt the LH and RH front stabilizer bar brackets.

4. Remove the Front End Sheet Metal (FESM) body mount bolts and mounts on the side the repair is being carried out.

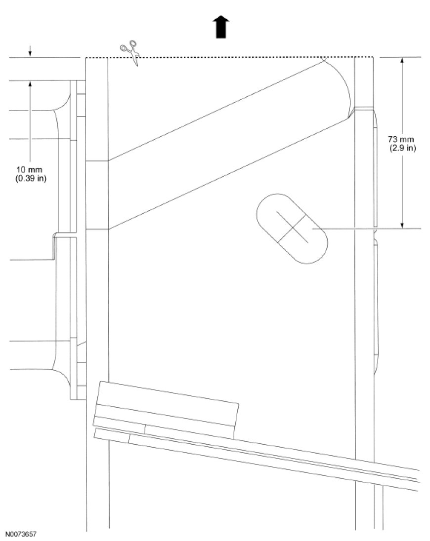
5. NOTE: It is recommended to create a clear vinyl copy of this template. Template must be applied to frame with arrow to front of vehicle in horizontal position.

Scribe cutting lines on the damaged front frame section using the template above.





6. Using a plasma cutter, reciprocating saw or die-grinder, remove the damaged front frame horn section. DO NOT cut directly along the scribe line. Leave enough material on the forward side of the scribe line to allow the edge to be ground back exactly to the scribe line. This is required to make sure of correct fit up between the frame and the replacement section.





NOTICE: Do not thin out the frame rail. The material must maintain a minimum thickness of 3.4 mm (0.13 in) after grinding.

7. Grind off the excess frame in front of the scribed line on the existing frame horn.
- Sand off as much of the frame coating as possible using 36 to 60 grit sandpaper on the inner and outer surfaces within a minimum of 20 mm (0.78 in) of the repair joint-including the overlap.

8. Use a wire brush to remove any foreign material from the frame within 25 mm (0.98 in) of the repair joint. Use metal surface prep or equivalent to remove the remaining coating on the inner and outer surfaces within 20 mm (0.78 in) of the joint.
- Apply a zinc-rich weld-through primer to the exposed inner and outer mating surfaces.

9. Make sure that the frame and service replacement part have attained a minimum room temperature of 10�C (50�F) before beginning the weld procedure. A Metal Inert Gas (MIG) welder capable of producing 185-250 amps must be used. Use 0.035 to 0.045 inch ER70S-3 or equivalent weld wire that is compatible with SAE 1010 steel. Shielding gas must be 100% carbon dioxide or 75% carbon dioxide and 25% argon.

10. Install the replacement frame section onto the frame. Slide the replacement frame section all the way into the frame rail until it touches the rail. Support the replacement frame section in position. Verify that the FESM mount bracket lines up with sheet metal hole. The holes should line up so that the FESM mount can be installed and the FESM mount bolt can be installed.





11. Tack weld the frame horn replacement section into the existing frame at 4 small points centered on the flats between the corners. This will hold the section in place to check the fit up prior to completely welding up the section.

12. Make sure the frame section replacement is correctly aligned.
- Carry out the remainder of the welding procedure.

- After welding is complete, grind off any excess weld material.





13. Use a dye penetrant to determine if any cracks or large voids exist in the weld joint after the welding process has been completed.
- If any cracks or other defects exist, grind out the defect and repair it until the imperfection is corrected.

14. Clean the repaired area(s) and any exposed metal surfaces. Restore corrosion protection to the interior and exterior surfaces of the repaired area(s) to the extent possible.

15. Install the components removed during the repair procedure.